
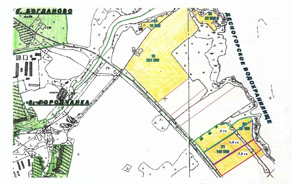
Земельные участки под базы отдыха на первой линии Десногорского водохранилища - "Пионер-лагерь"
Рельеф участков ровный, наблюдается незначительный уклон в сторону водохранилища. Береговая линия составляет около 400 метров. Открывается живописный вид на водохранилище и окрестности.
Чистейший воздух, великолепная природа, большая вода, а главное тишина и спокойствие – мест, сочетающих все это, сейчас становится не так много. Если вы мечтаете организовать базу отдыха или пансионат, где можно будет постоянно отдыхать с пользой для здоровья, и наслаждаться поистине незабываемыми пейзажами, - участки «Пионер-лагерь» - идеальное место.
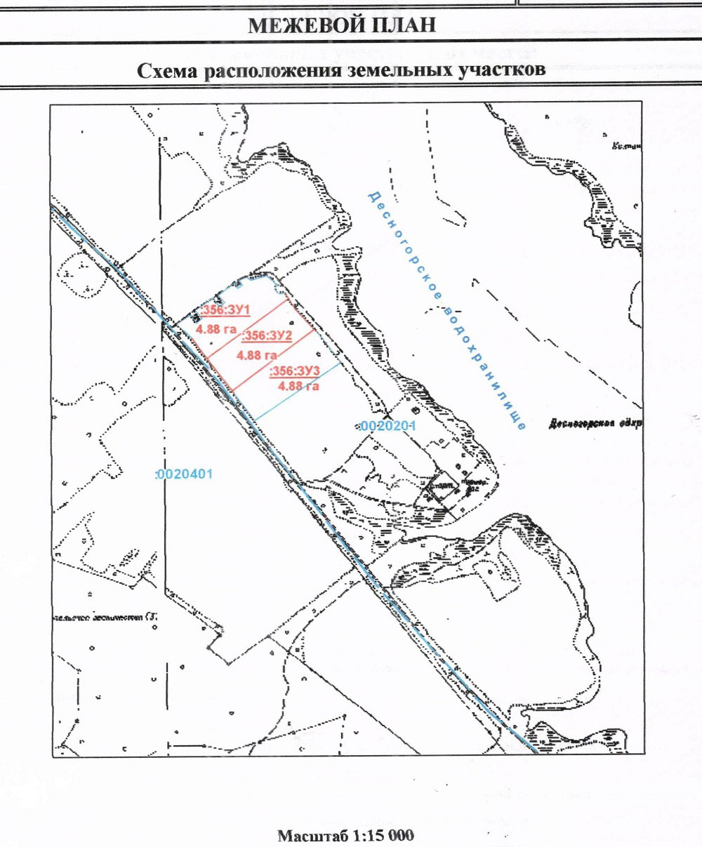
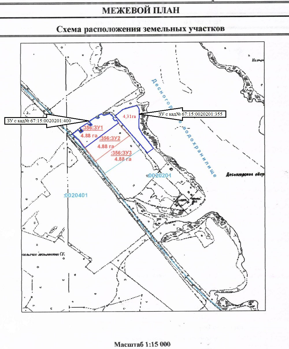
Под базы отдыха предлагаются три массива, объединяющие участки площадью от 1342 кв.м. до 2116 кв.м. и 19 200 кв.м.:
1-й массив - 58 033 кв.м.
2-й массив - 68 033 кв.м.
3-й массив - 60 033 кв.м.
Месторасположение: Смоленская область, Рославльский район, Богдановское сельское поселение, примерно в 1630 м по направлению на юго-восток от д.Городчанка
Категория земель: земли населенных пунктов
Разрешенное использование: для индивидуального жилищного строительства
Транспортная доступность: всесезонная, подъезд - асфальт
Ближайшая крупная транспортная магистраль – Варшавское шоссе, проходит на расстоянии около 15 км от участков в сторону г.Десногорска по асфальтированной трассе, и в 3,5 км выезд на трассу «Рославль-Ельня».
Ближайший населенный пункт – административный центр с.Богданово – в 2 км,
г.Десногорск – в 11 км, г.Рославль – в 41 км, г.Смоленск – в 145 км.
Коммуникации: электричество 0,4 кВт по границе участков, грунтовая внутренняя дорога, газификация в перспективе: у Богдановского сельского поселения хорошая перспектива газификации – в с.Богданово уже проведен магистральный газопровод и ведется газификация жилой зоны.


Выкопировка Генерального плана Богдановского сельского поселения

Генеральный план Богдановского сельского поселения скачать здесь
Ссылка на сайт Администрации Богдановского сельского поселения http://www.bogdanovo.roslavl.ru/map.php
Выкопировка публичной кадастровой карты Росреестра

|
1-й массив – 5,8 га |
2-й массив – 6,8 га |
3-й массив – 6 га |
||||||
|
№п/п |
Кадастровый № участка |
Площадь, кв.м. |
№п/п |
Кадастровый № участка |
Площадь, кв.м. |
№п/п |
Кадастровый № участка |
Площадь, кв.м. |
|
1 |
67:15:0020201:1933 |
1601 |
1 |
67:15:0020201:1944 |
1741 |
1 |
67:15:0020201:400 |
48 833 |
|
2 |
67:15:0020201:1915 |
1600 |
2 |
67:15:0020201:1948 |
1756 |
2 |
67:15:0020201:355 |
11 200 |
|
3 |
67:15:0020201:1936 |
1610 |
3 |
67:15:0020201:1960 |
1737 |
итого |
60 033 |
|
|
4 |
67:15:0020201:1932 |
1569 |
4 |
67:15:0020201:1951 |
1785 |
|||
|
5 |
67:15:0020201:1920 |
1605 |
5 |
67:15:0020201:1946 |
1793 |
|||
|
6 |
67:15:0020201:1914 |
1406 |
6 |
67:15:0020201:1958 |
1768 |
|||
|
7 |
67:15:0020201:1923 |
1419 |
7 |
67:15:0020201:1957 |
1759 |
|||
|
8 |
67:15:0020201:1931 |
1445 |
8 |
67:15:0020201:1947 |
1753 |
|||
|
9 |
67:15:0020201:1913 |
1448 |
9 |
67:15:0020201:1942 |
1717 |
|||
|
10 |
67:15:0020201:1930 |
1436 |
10 |
67:15:0020201:1943 |
1725 |
|||
|
11 |
67:15:0020201:1925 |
1701 |
11 |
67:15:0020201:1954 |
1725 |
|||
|
12 |
67:15:0020201:1935 |
1713 |
12 |
67:15:0020201:1955 |
1844 |
|||
|
13 |
67:15:0020201:1912 |
1714 |
13 |
67:15:0020201:1949 |
1785 |
|||
|
14 |
67:15:0020201:1919 |
1785 |
14 |
67:15:0020201:1962 |
1741 |
|||
|
15 |
67:15:0020201:1922 |
1701 |
15 |
67:15:0020201:1952 |
1732 |
|||
|
16 |
67:15:0020201:1929 |
1703 |
16 |
67:15:0020201:1953 |
1718 |
|||
|
17 |
67:15:0020201:1926 |
1708 |
17 |
67:15:0020201:1950 |
1693 |
|||
|
18 |
67:15:0020201:1921 |
1659 |
18 |
67:15:0020201:1939 |
1775 |
|||
|
19 |
67:15:0020201:1909 |
1607 |
19 |
67:15:0020201:1963 |
1703 |
|||
|
20 |
67:15:0020201:1916 |
1618 |
20 |
67:15:0020201:1940 |
1757 |
|||
|
21 |
67:15:0020201:1924 |
1625 |
21 |
67:15:0020201:1945 |
1724 |
|||
|
22 |
67:15:0020201:1927 |
1712 |
22 |
67:15:0020201:1965 |
1702 |
|||
|
23 |
67:15:0020201:1917 |
1677 |
23 |
67:15:0020201:1964 |
1629 |
|||
|
24 |
67:15:0020201:1911 |
1638 |
24 |
67:15:0020201:1956 |
1604 |
|||
|
25 |
67:15:0020201:1934 |
1602 |
25 |
67:15:0020201:1941 |
1510 |
|||
|
26 |
67:15:0020201:1937 |
1512 |
26 |
67:15:0020201:1961 |
2116 |
|||
|
27 |
67:15:0020201:1910 |
1342 |
27 |
67:15:0020201:1959 |
2091 |
|||
|
28 |
67:15:0020201:1928 |
2006 |
28 |
67:15:0020201:1938 |
1450 |
|||
|
29 |
67:15:0020201:1918 |
2117 |
29 |
67:15:0020201:355 |
19 200 |
|||
|
30 |
67:15:0020201:1908 |
1548 |
итого |
68 033 |
||||
|
31 |
67:15:0020201:355 |
9 200 |
||||||
|
итого |
58 033 |
|||||||




Видеопрезентация "Пионер-лагерь":
https://www.youtube.com/watch?v=WVRs8t0yynQ
Видеопрезентация всех участков на Десногорском водохранилище
http://www.youtube.com/watch?v=l5PtXvqp07Q&feature=youtu.be
Интересные видеоматериалы об отдыхе на Десногорском водохранилище можно посмотреть здесь:
http://www.youtube.com/watch?v=QnKSWq6UBJE
http://www.youtube.com/watch?v=srbdnLM9Xi8
http://www.youtube.com/watch?v=uxPdecXbtjU
http://www.youtube.com/watch?v=JqAbMYF3kpk
http://www.youtube.com/watch?v=l3lIXsx1H2g
http://www.youtube.com/watch?v=t0JQbJWRDdY
http://www.youtube.com/watch?v=WY_CZKzszzI
