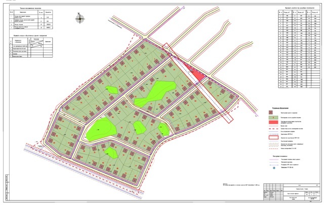
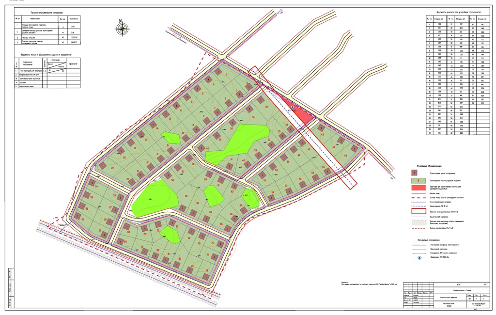
Общее описание
Земельные участки:
общая площадь поселка - 158 000 кв.м.
количество участков - 82 участка;
площадь участков - от 1064 до 2141 кв.м.
Расположение:
Смоленская область г.Рославль
Расстояние: от МКАД - 380 км
от Брянска - 124 км
от Смоленска - 103 км
Коммуникации:
электричество, газ, канализация на границе участка, подведена автодорога.
Категория земель:
земли населенных пунктов.
Разрешенное использование:
индивидуальное жилищное строительство.
Возможно изменение вида разрешенного использования под необходимый вид деятельности.
Месторасположение
{svmap id="10"}
