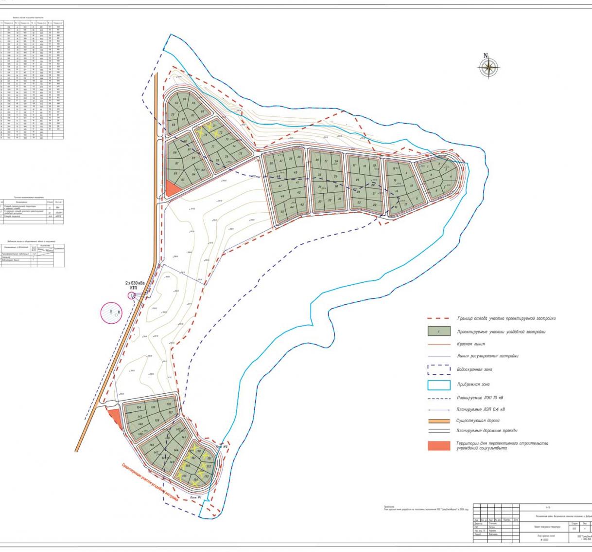
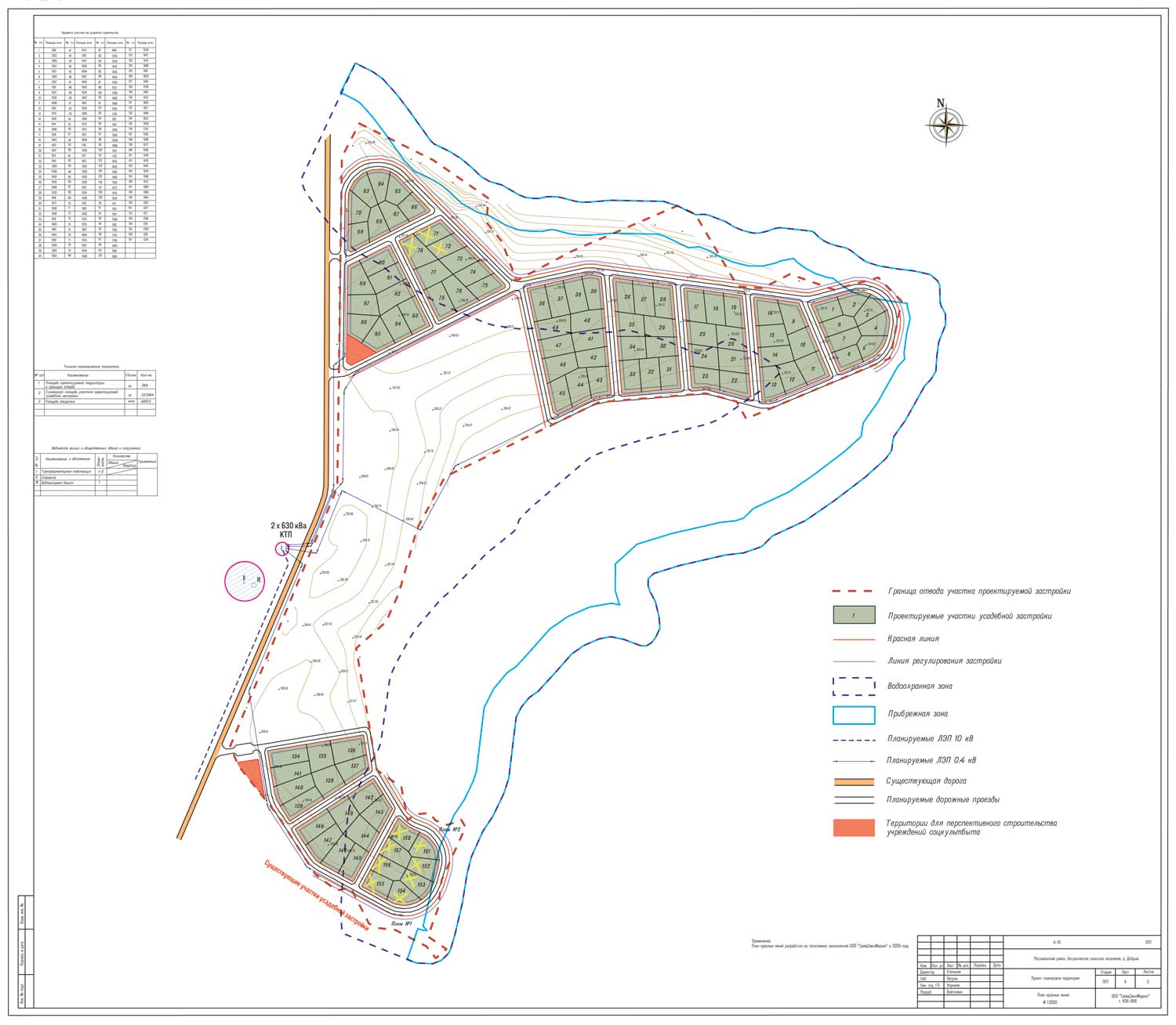
Информация о участках:
общая площадь - 366102 кв.м;
количество участков - 157 участков;
участки площадью от 12 до 20 соток.
Расположение:
Участки расположены в Смоленской области, Рославльском районе, по направлению от ориентира д. Добрый на первой линии вдоль Десногорского водохранилища.
Категория земель:
земли населенных пунктов.
Разрешенное использование:
индивидуальное жилищное строительство
{svmap id="13"}
подробнее на публичной кадастровой карте Росреестра: http://maps.rosreestr.ru/Portal/?l=15&x=3691296.6467399294&y=7219907.589521654&mls=kosmos|anno&cls=cadastre
Красные линии:

Проект планировки:

Площадь и цену земельных участков можно смотреть во вкладке: информация о участках.
Видеопрезентацию всех поселков на Десногорском водохранилище можно посмотреть по ссылке:
http://www.youtube.com/watch?v=l5PtXvqp07Q&feature=youtu.be
Интересные видеоматериалы об отдыхе на Десногорском водохранилище можно посмотреть здесь:
http://www.youtube.com/watch?v=8KYzF7Zcc00
http://www.youtube.com/watch?v=B7gX4JyYe2w
http://www.youtube.com/watch?v=uLNU75e3qkk
http://www.youtube.com/watch?v=QnKSWq6UBJE
На схеме желтым крестиком обозначены участки, которые уже проданы или зарезервированы. Более подробную информацию о площади и стоимости участков можно посмотреть в таблице: Информация об участках
Поселок относится к жилой зоне Ж1.
1. Территориальная зона Ж1 – зона застройки индивидуальными жилыми домами с индивидуальными земельными участками и блокированными домами с приквартирными участками предназначена для проживания отдельных семей в отдельно стоящих домах усадебного типа и блокированных домах с приквартирными участками с правом ведения ограниченного личного подсобного хозяйства (содержание домашнего скота и птицы), и индивидуальной трудовой деятельностис минимально разрешенным набором услуг местного значения.
2. Перечень видов разрешенного использования объектов капитального строительства и земельных участков территориальной зоны Ж1 установлен в соответствии с таблицей 2.
3.На территориижилой зоны Ж1 в пределах приусадебных участков запрещается размещение закрытых автостоянок для грузового транспорта и транспорта для перевозки людей, находящегося в личной собственности, кроме автотранспорта грузоподъёмностью менее 1,5 т.
Во встроено-пристроенных к дому помещений общественного назначения не допускается размещать специализированные магазины строительных материалов, магазины с наличием в них взрывоопасных веществ и материалов, также предприятий бытового обслуживания, в которых применяются легковоспламеняющиеся жидкости (за исключением парикмахерских, мастерских по ремонту обуви).
На землях общего пользования не допускается ремонт автомобилей, складирование строительных материалов, хозяйственного инвентаря.
Не допускается размещать со стороны улицы вспомогательные строения.
Размещение бань и саун допускается при условии канализования стоков.
Размещение рекламы не допускается на ограждениях участка, дома, строения.
Размещение мелкого скота и птицы в районах индивидуальной застройки усадебного типа допускается при размере приусадебного участка не менее 0,1 га.
4. Дополнительные ограничения использования земельных участков и объектов капитального строительства территориальной зоны Ж1 установлены в статьях 49, 50 – 50.15 Правил.
Таблица 2
|
Отношение к главной функции |
№№ пп |
Виды разрешенного использования территории |
Параметры застройки |
|---|---|---|---|
|
Основные виды |
1. |
Отдельно стоящие индивидуальные жилые дома усадебного типа с возможностью содержания скота и птицы |
1. Размеры земельных участков: минимальная площадь участков – 400 кв. м; максимальная площадь участков – 7000 кв. м. 2. Коэффициент использования территории- не более 0.67. 3. Этажность – не более 3 этажей. 4. Отступ: а) от жилого дома до красной линии при новом строительстве: - не менее 5 м со стороны улиц; - не мене 3 м со стороны проездов; - в районе существующей застройки – в соответствии со сложившейся ситуацией. б) от хозяйственных построек до красной линии улиц и проездов - не менее 5 м. 5. Минимальное расстояние от границ соседнего участка до: -жилого дома – 3 м; -хозяйственных и прочих строений – 1 м; -открытой автостоянки – 1 м; -отдельно стоящего гаража – 1 м; 6. Минимальное расстояние: а) от окон жилых помещений: - до соседнего жилого дома и хозяйственных строений на соседнем участке – 6м; по противопожарным нормам в зависимости от огнестойкости зданий и сооружений от 6 м до 15м; - до душа, бани и сауны – 8 м; - до построек с содержанием мелкого скота и птицы, уборной, душа, бани и сауны - 12 м; б) от колодца до уборной и компостного устройства – 8 м; в) от погреба до компостного устройства и постройки для содержания мелкого скота и птицы – 12 м. Указанные расстояния должны соблюдаться как между постройками на одном участке, так и между постройками, расположенными на смежных участках. 7. Минимальное расстояние от границ соседнего участка: - до построек для содержания скота и птицы не менее 4 м; - до стволов высокорослых деревьев – 4 м; - до стволов среднерослых деревьев – 2 м; - до кустарников – 1 м. 8. Максимальная высота ограждения со стороны улиц – 2.0 м. Ограждение должно быть прозрачным и выдержанным в едином стиле. Максимальная высота ограждения между соседними участками – 2.0 м. Ограждение между соседними участками должно быть сетчатым или решетчатым, не должно затенять соседний участок. 9. Расстояние между жилыми домами при новом строительстве – в соответствии с нормами противопожарной безопасности, инсоляции и освещенности. 10. При новом строительстве допускается блокировка жилых домов и хозяйственных строений на смежных соседних участках по взаимному согласию владельцев с учетом противопожарных требований. |
|
2. |
Блокированные 2-х квартирные и многоквартирные жилые дома этажностью не выше 3-х этажей с приквартирными участками |
1. Минимальная площадь приквартирных участков – 250 кв. м 2. Коэффициент использования территории: - 1-2-х квартирного, 1-2-х этажного блокированного жилого дома - не более 0.8-1.6; - многоквартирного блокированного жилого дома – не более 0.8. 3. Отступ линии застройки от красной линии: а) при новом строительстве: - не менее 5 м со стороны улиц; - не мене 3 м со стороны проездов; б) в районе существующей застройки – в соответствии со сложившейся ситуацией. 4 Максимальная высота ограждения между соседними приквартирными участками – не более 1.0 м 5. Ограждение между соседними приквартирными участками должно быть прозрачным. Ограждение со стороны улиц, проездов должно быть выполнено в едином стиле. |
|
|
3. |
Здания органов государственной власти, органов местного самоуправления, суда, прокуратуры, охраны правопорядка |
1. Этажность - не более 3-х этажей 2. Высота зданий - не более 15 м 3. Процент застройки устанавливается проектной документацией 4. Отступ застройки от красной линии: а) в районах существующей застройки - в соответствии со сложившейся линией застройки; б) в районах новой застройки: - зданий общеобразовательных учреждений и детских дошкольных учреждений от красной линии – 25 м; - иных зданий – не менее 5 м. 5. Размер земельного участка на одно место: - детские дошкольные учреждения: отдельно стоящие – 30-40 кв. м (в зависимости от вместимости), пристроенные – 22.5 кв. м; - общеобразовательные учреждения – 17-60 кв. м; - магазины: отдельно стоящие – не более 1150 кв. м; встроенно-пристроенные – общей площадью не более 400 кв. м. 6. Поликлиники – общей площадью не более 600 кв. м. |
|
|
4. |
Общеобразовательные учреждения |
||
|
5. |
Детские дошкольные учреждения |
||
|
6. |
Библиотеки, справочные бюро, салоны сотовой связи, фотосалоны, парикмахерские, прачечные, химчистки, пошивочные ателье, мастерские по мелкому бытовому ремонту |
||
|
7. |
Поликлиники, амбулатории, центры медицинских консультаций населения, молочные кухни |
||
|
8. |
Медицинские кабинеты, аптеки, аптечные киоски |
||
|
9. |
Ветеринарные лечебницы для мелких домашних животных без их постоянного содержания |
||
|
10. |
Магазины продовольственные и промтоварные торговой площадью не более 150 кв. м |
||
|
11. |
Объекты гражданской обороны, объекты пожарной охраны (гидранты, резервуары, щиты с инвентарем и другие) |
||
|
Вспомогательные
|
1. |
В пределах индивидуального или приквартирного участка:
|
|
|
Отдельно стоящие или встроенные в жилые дома гаражи или открытые автостоянки |
Вместимость гаражей: на индивидуальный участок – на 2 транспортных средства; на приквартирный участок – на 1 транспортное средство |
||
|
|
|
||
|
Строения для содержания скота и птицы |
|
||
|
Сады, огороды, палисадники |
|
||
|
Теплицы, оранжереи |
|
||
|
Индивидуальные резервуары для хранения воды, скважины для забора воды, индивидуальные колодцы |
|
||
|
Индивидуальные бани, надворные туалеты |
|
||
|
Площадки для сбора мусора |
|
||
|
Скульптура и скульптурные композиции, фонтаны и другие объекты ландшафтного дизайна |
|
||
|
2. |
Хозяйственные постройки и отдельно стоящие хозяйственные корпуса общественных зданий |
|
|
|
3. |
Гаражи служебного автотранспорта |
|
|
|
4. |
Гостевые автостоянки |
Вместимость не более 10 машино-мест. Минимальное расстояние: - от жилых домов и общественных зданий – 10 м; - детских, общеобразовательных учреждений, лечебных, спортивных сооружений и мест отдыха – 25 м. |
|
|
5. |
Сооружения локального инженерного обеспечения |
|
|
|
6. |
Здания и сооружения для размещения служб охраны и наблюдения |
|
|
|
7. |
Здания и помещения жилищно-эксплуатационных и аварийно-диспетчерских служб |
|
|
|
8. |
Открытые площадки для занятий спортом и физкультурой |
Минимальное расстояние от жилых и общественных зданий в зависимости от шумовых характеристик от 10 до 40 м. |
|
|
9. |
Школьные сады |
|
|
|
10. |
Учебно-тренировочные комплексы |
|
|
|
11. |
Склады инвентаря |
|
|
|
12. |
Площадки для сбора мусора |
Площадки для сбора мусора - из расчета 1 контейнер на 10-15 семей. Расстояние до границ участков жилых домов не менее 20 м, но не более 100 м, детских учреждений, площадок отдыха – не менее 25 м. |
|
|
Условно разрешенные |
1. |
Хозяйственные постройки для ведения индивидуальной трудовой деятельности без применения пожароопасных или санитарно-вредных материалов |
|
|
2. |
Клубы многоцелевого и специализированного назначения |
|
|
|
3. |
Гостиницы |
|
|
|
4. |
Отделения банков |
|
|
|
5. |
Магазины торговой площадью более 150 кв. м |
|
|
|
6. |
Физкультурно-спортивные комплексы |
|
|
|
7. |
Больницы, диспансеры, пункты оказания скорой медицинской помощи, санитарно-эпидемиологические станции |
|
|
|
8. |
Пожарные части, здания для размещения подразделений пожарной охраны |
Отступ от красной линии не менее 10 м |
|
|
9. |
Бассейны общего пользования |
|
|
|
10. |
Бани, сауны общего пользования |
|
|
|
11. |
Предприятия общественного питания |
Вместимостью не более 16 посадочных мест |
|
|
12. |
Автомойки мощностью не более двух постов |
|
|
|
13. |
Гаражи подземные, полузаглубленные, многоэтажные |
|
|
|
14. |
Культовые сооружения и объекты |
|
|
|
15. |
Производственные, коммунальные |
Класс санитарной вредности - не выше V |
Порядок газификации:
ПОЛОЖЕНИЕ
о газификации домов частного сектора на территории Смоленской области
1. Проектирование газоснабжения частных домов, в том числе и уличных газопроводов за личные средства населения, производится на основании письменного заявления домовладельца (домовладельцев) по техническим условиям, выданным газовыми хозяйствами.
2. При газификации частных домов со строительством уличных газопроводов, газопроводов-вводов и монтажом внутридомового оборудования, заказчиками выступают домовладельцы. По вопросу проектирования и строительства уличного газопровода домовладельцы проводят общее собрание, на котором выбирают уполномоченного с правом представительства интересов всех заказчиков на период газификации.
Оформленный протокол собрания, Постановление Главы Муниципального образования, а также разрешение на подключение к существующим сетям газоснабжения (при необходимости) Заказчик передает в подразделение газового хозяйства для получения технических условий на газификацию.
3. Проектирование объектов газоснабжения производится проектной организацией на основании заявления Заказчика.
К заявлению прилагаются:
4. Выполнение строительно-монтажных работ за личные средства населения по газификации частных домов, в том числе и строительство уличных газопроводов, производится силами специализированных строительных организаций.
5. Уличные газопроводы и подводки к жилым домам после приемки их в эксплуатацию остаются в собственности домовладельцев.
Подключение к газопроводам потребителей природного газа, не принимавших участие в финансировании данных объектов, производится ОАО «Смоленскоблгаз» с письменного согласия владельцев или их представителя.
6. Заказчиками по строительству уличных газопроводов могут выступать также организации газового хозяйства, предприятия, администрации и т.д.
7. На уличные газопроводы и подводки к жилым домам, остающиеся в собственности физических или юридических лиц, до пуска их в эксплуатацию необходимо оформить договор безвозмездного пользования с приложением акта приема-передачи или договор на техническое обслуживание принимаемого в эксплуатацию газопровода.
8. Пуск газа производится при наличии:
ПОРЯДОК
врезки и первичного пуска газа для физических лиц
Врезка и первичный пуск газа осуществляется ОАО «Смоленскоблгаз» на основании подписанного договора с ООО «Газпром межрегионгаз Смоленск» на поставку газа.
Для заключения договора на поставку газа физическое лицо представляет в ООО «Газпром межрегионгаз Смоленск» :
1. Документы, подтверждающие право собственности заявителя в отношении помещений, газоснабжение которых надо обеспечить.
2. Личный паспорт.
3. Справку о составе семьи или домовую книгу.
4. Документы, подтверждающие меры социальной поддержки по оплате за газ (в случае предоставления таких мер).
5. Справку, подтверждающую наличие или отсутствие сельскохозяйственных животных или птиц.
6. Копию проекта и акта приемки объекта в эксплуатацию.
7. Паспорта на все установленное газовое оборудование.
8. Договор на техническое обслуживание с эксплуатационной организацией.
9. Акт о границе раздела собственности.
Основание: Постановление Правительства РФ от 21.07.2008 г. № 549
Технологическое присоединение:
Технологическое присоединение - комплексная услуга, оказываемая сетевыми компаниями юридическим и физическим лицам для выдачи электрической мощности и предусматривающая фактическое присоединение энергопринимающих устройств (энергетических установок) потребителей к объектам сетевого хозяйства.
Обратиться с заявлением на технологическое присоединение можно по адресу: г.Рославль, ул.Энергетиков, д.18а, тел. (48134) 6-41-23.
Услуга по технологическому присоединению оказывается вновь присоединяемым потребителям, а также потребителям, нуждающимся в увеличении потребляемой мощности, и включает в себя целый комплекс мероприятий, таких как:
- подача клиентом заявления Скачать образец заявления можно на сайте МРСК Центра: http://www.mrsk-1.ru/ru/clients/fitting/forms/ или здесь.
и пакета документов в сетевую компанию:
1. Личный паспорт (копия делается на ксероксе 2,3,5 лист);
2. Свидетельство на право собственности на землю + копия;
3. Кадастровый паспорт 2 листа (кадастровый паспорт заказывается на свое имя, можно заказать в г. Рославле по адресу: 34 микрорайон, д.3, здание МФЦ: тел: (48134)2-02-03 или 2-17-60
4. Ситуационный план (Выкипировку из межевого досье), можно взять из приложения к предварительному договору купли-продажи, либо обратиться в офис ООО "Агро" по адресу: г. Рославль, ул.Ленина, д.4, оф.1.
Записаться на прием для подачи заявления на технологическое присоединениев Центр обслуживания клиентов МРСК-Центра можно на сайте МРСК Центра:http://www.mrsk-1.ru/ru/clients/customer-service/record/ или по телефону 8-800-50-50-115
Далее следует:
- заключение договора на технологическое присоединение и согласование технических условий;
- выполнение сторонами договора соответствующих мероприятий;
- получение разрешения на допуск в эксплуатацию объектов;
- фактическое присоединение энергопринимающего устройства потребителя к электрической сети сетевой организации;
- составление Акта о технологическом присоединении.
За пояснениями и справками можно обратиться по тел: (48134)6-57-78, офис ООО "Агро".
Получить дополнительную информацию по вопросам осуществления технологического присоединения можно, обратившись в Центр обслуживания клиентов филиала ОАО "МРСК Центра" - Смоленскэнерго (в Рославле или Екимовичах), а также по единому бесплатному телефону прямой линии энергетиков 8-800-50-50-115.
Более подробную информацию о порядке подключения электричества можно получить, скачав Выдержку из Постановления Правительства РФ от 27.12.2004 №861 (ред. от 20.12.2012).
Доводим до вашего сведения, что для центрального водоснабжения требуется создание Товарищества собственников жилья (ТСЖ) и оформление лицензии для водопользования. Данная процедура является затратной и в рамках нынешнего состояния строительства маловероятной.
Поэтому наиболее оптимально делать индивидуальное водоснабжение. При этом можно бурить скважины на несколько соседних домовладений. Ориентировочная цена одного метра бурения (включая трубы и расходные материалы) составляет 2000 рублей.
Прилагаем телефоны организаций, занимающихся водоснабжением:
1. бурение скважин на воду: 8-925-740-29-46, 8-917-550-25-94, 8-903-792-72-87, 8-951-698-35-18;
2. бурение скважин на воду: 8-904-367-15-30, 8-910-712-80-55;
3. бурение скважин на воду: 8-910-722-79-99;
4. бурение скважин на воду: 8-910-715-81-98;
5. бурение скважин на воду: 8-903-892-39-93, 8-903-892-93-39, 8 (4812) 63-02-48;
6. бурение скважин на воду: 8-951-714-14-41, 8-951-706-62-15;
7. бурение скважин на воду: 8-915-633-57-80;
8. бурение скважин на воду: 8-920-667-77-21, 8-905-696-94-41;
9. бурение скважин на воду: 8-908-281-29-41, 8-910-784-80-80.
После того как Вами получены правоустанавливающие документы на земельный участок (после государственной регистрации в Управлении Федеральной службы государственной регистрации, кадастра и картографии) и кадастровым инженером осуществлен вынос в натуре Вашего земельного участка можно непосредственно подходить к строительству на своем участке.
Первым этапом в процессе строительства индивидуального жилого дома является получение разрешения на строительство. Правовой базой в этом вопросе, главным образом, является статья 51 Градостроительного кодекса РФ.
Разрешение на строительство - это документ, который удостоверяет соответствие проектной документации (в нашем случае – схемы планировочной организации земельного участка с обозначением места размещения индивидуального жилого дома (см. пункт 3 в списке Документов для получения разрешения на строительство) требованиям градостроительного плана земельного участка и дающий застройщику право осуществлять строительство.
Для получения разрешения на строительство загородного дома необходимо обратиться в Администрацию МО "Рославльский район" Смоленской области с заявлением о выдаче разрешения на строительство (лично в МФЦ или на сайте Госуслуг). К указанному заявлению нужно приложить следующие документы:
1) Правоустанавливающие документы на земельный участок (свидетельство+копия)
2) Градостроительный план земельного участка, для получения которого необходим следующий пакет документов:
- заявление от всех правообладателей земельного участка (в Комитет по строительству и архитектуре, 1 этаж), к которому приложить копии документов:
- правоустанавливающего документа на земельный участок (свидетельство)
- кадастрового паспорта земельного участка
- ситуационный план (местная система коордионат) – выкопировку из межевого досье
- акта выноса земельного участка в натуре (у кадастрового инженера)
- паспорта
- постановления Главы Администрации Богдановского сельского поселения о присвоении названия улицам + копия схемы
3) Схема планировочной организации земельного участка с обозначением места размещения объекта индивидуального жилищного строительства (ИЖС)
Схему можно заказать в организации ООО «ТрейдСмолМаркет», контактные телефоны: 8-48-149-312-66, 8-908-283-96-52; или в ООО «Электросетьремонт» контактный телефон: 8 910 716 35 90
При этом должностные лица не вправе требовать иные документы для получения разрешения на строительство, за исключением вышеперечисленных.
Комитет по строительству и архитектуре проверяет, во-первых, наличие всех необходимых документов, приложенных к заявлению; во-вторых, соответствие схемы планировочной организации земельного участка с обозначением места размещения индивидуального жилого дома требованиям градостроительного плана земельного участка.
Если все документы имеются, и никаких несоответствий не выявлено в течение десяти дней со дня получения заявления о выдаче разрешения на строительство такое разрешение должно быть выдано заявителю.
Для объектов кроме ИЖС: проектная документация.
* Официальный сайт Администрации Рославльского района Смоленской области: http://www.roslavl.ru/
ДЛЯ ВВОДА ОБЪЕКТА В ЭКСПЛУАТАЦИЮ:
Для ИЖС:
1. Правоустанавливающие документы на земельный участок (свидетельство+копия);
2. Градостроительный план земельного участка;
3. Разрешение на строительство (комитет по строительству и архитектуре, Специалисты 2-й этаж);
4. Справка обмера БТИ (Предоставляется в бюро технической инвентаризации)
Управление Федеральной службы государственной регистрации, кадастра и картографии по Смоленской области
Адрес: 216500, г. Рославль, ул. Ленина, 15а
Официальный сайт: http://to67.rosreestr.ru/
ФИО руководителя структурного подразделения: Рясной Геннадий Николаевич (48134) 6-66-68
Телефоны для справок: (48134) 6-66-68, (48134) 6-76-97, (48134) 6-76-21
Управление Федеральной службы государственной регистрации, кадастра и картографии по Смоленской области осуществляет прием и выдачу документов в СОГУ «Рославльском многофункциональном центре»
Адрес: 216500, Смоленская область, г.Рославль, микрорайон 34, д3.
Официальный сайт: http://мфц67.рф/
ФИО руководителя филиала: Никитин Евгений Сергеевич
Телефоны для справок: (48134) 4-17-40, (48134) 4-03-40, (48134)2-02-03
Администрация Богдановского сельского поселения Рославльского района Смоленской области
Адрес: 216524, Смоленская область, Рославльский район, село Богданово, улица им. колхоза «Быстрые волны», 8 телефон: (48134) 5-36-30
E-mail:
Этот e-mail адрес защищен от спам-ботов, для его просмотра у Вас должен быть включен Javascript
,
Этот e-mail адрес защищен от спам-ботов, для его просмотра у Вас должен быть включен Javascript
Официальный сайт: http://www.bogdanovo.roslavl.ru/ Этот e-mail адрес защищен от спам-ботов, для его просмотра у Вас должен быть включен Javascript
Селедцов Алексей Николаевич - Глава муниципального образования Богдановского сельского поселения Рославльского района Смоленской области, тел. (48134) 5-36-30
Останкова Елена Ивановна- Бухгалтер, инспектор Администрации Богдановского сельского поселения, тел. (48134) 5-36-30
График работы Администрации Богдановского сельского поселения с обращениями граждан:
|
Понедельник |
|
|
|
Вторник |
||
|
Среда |
||
|
Четверг |
||
|
Пятница |
Не приемный день |
|
|
Суббота, воскресенье |
Выходной |
Уважаемый покупатель!
Доводим до вашего сведения следующую полезную информацию:
После приобретения земельного участка Вам необходимо проделать следующие шаги:
1. Получение правоустанавливающих документов на земельный участок после государственной регистрации:
Государственная регистрация длится 10 рабочих дней. По истечении этого срока необходимо получить правоустанавливающие документы на земельный участок в СОГУ «Рославльском многофункциональном центре»
Адрес: 216500, Смоленская область, г.Рославль, микрорайон 34, д3.
ФИО руководителя филиала: Никитин Евгений Сергеевич
Телефоны для справок: (48134) 4-17-40, (48134) 4-03-40, (48134)2-02-03
2. Вынос земельного участка в натуре:
Для того чтобы вынести земельный участок в натуре Вам необходимо:
- обратиться к кадастровому инженеру, например: Виноградов Андрей, тел. 8-910-710-30-92
- по результатам выноса земельного участка в натуре составить акт.
Данную процедуру желательно проводить с соседями граничащего земельного участка. Это позволит сэкономить денежные средства и избежать конфликтных ситуаций.
3. Подключение электричества:
Для подключения электричества Вам необходимо обратиться с заявлением на технологическое присоединение в Центр обслуживания клиентов МРСК-Центра:
г. Рославль, ул. Энергетиков, 18А, тел. (48134) 6-41-23
Скачать образец заявления можно на сайте МРСК Центра: http://www.mrsk-1.ru/ru/clients/fitting/forms/
- в сетевую компанию кроме заявления надо подать следующие документы:
1. Личный паспорт (копия делается на ксероксе 2,3,5 лист);
2. Свидетельство на право собственности на землю + копия;
3. Кадастровый паспорт 2 листа (кадастровый паспорт заказывается на свое имя, можно заказать в г. Рославле по адресу: 34 микрорайон, д.3, здание МФЦ: тел: (48134)2-02-03, либо в г. Десногорске по адресу: 1 мкрн, гостиница "Вега"
4. Ситуационный план (Выкопировку из межевого досье), можно взять из приложения к предварительному договору купли-продажи, либо обратиться в офис ООО "Агро" по адресу: г. Рославль, ул.Советская, д.82.
Далее следует:
- заключение договора на технологическое присоединение и согласование технических условий;
- выполнение сторонами договора соответствующих мероприятий;
- получение разрешения на допуск в эксплуатацию объектов;
- фактическое присоединение энергопринимающего устройства потребителя к электрической сети сетевой организации;
- составление Акта о технологическом присоединении.
Получить дополнительную информацию по вопросам осуществления технологического присоединения вы можете, обратившись в Центр обслуживания клиентов филиала, а также по единому бесплатному телефону прямой линии энергетиков 8-800-50-50-115.
4. Получение разрешения на строительство:
Для получения разрешения на строительство необходимо предоставить
в Комитет по строительству и архитектуре по адресу:
г. Рославль, ул. Ленина, д.2, (тел. (48134) 4-14-44)
следующие документы:
1) Правоустанавливающие документы на земельный участок (свидетельство+копия)
2) Градостроительный план земельного участка, для получения которого необходим следующий пакет документов:
- заявление от всех правообладателей земельного участка (в Комитет по строительству и архитектуре, 1 этаж), к которому приложить копии документов:
- правоустанавливающего документа на земельный участок (свидетельство)
- кадастрового паспорта земельного участка
- ситуационный план (местная система коордионат) – выкопировку из межевого досье
- акта выноса земельного участка в натуре (у кадастрового инженера)
- паспорта
- постановления Главы Администрации Богдановского сельского поселения о присвоении названия улицам + копия схемы
3) Схема планировочной организации земельного участка с обозначением места размещения объекта индивидуального жилищного строительства (ИЖС)
Схему можно заказать в
- ООО «ТрейдСмолМаркет» контактные телефоны: 8-48-149-312-66, 8-908-283-96-52;
- ООО «Электросетьремонт» контактный телефон: 8 910 716 35 90
5. Ввод объекта в эксплуатацию:
Для ввода объекта (ИЖС) в эксплуатацию необходимы:
1) Правоустанавливающие документы на земельный участок (свидетельство+копия);
2) Градостроительный план земельного участка;
3) Разрешение на строительство (комитет по строительству архитектуре);
4) Справка обмера БТИ (Предоставляется в бюро технической инвентаризации)
