Общая характеристика земельных участков: (Скачать подробнее)
общая площадь: 1 328 300 кв.м.
количество участков: 599 участков
площадь участков: от 1505 кв.м. до 2104 кв.м.
Шоссе: Варшавское (Москва - Бобруйск)
Расположение:
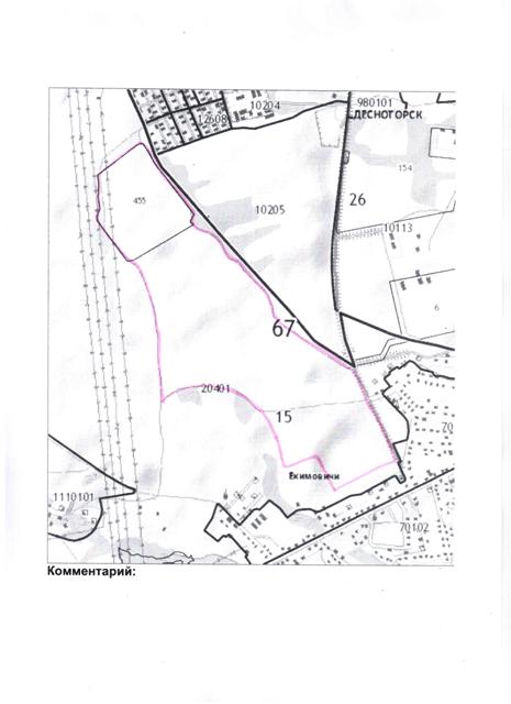
Земельные участки расположены в с.Екимовичи Рославльского района Смоленской области (вдоль трассы Екимовичи - Десногорск по левую сторону в направлении движения на Десногорск).
Расстояние: от МКАД 350 км
от Смоленска 143 км
от Брянска 170 км
от Десногорска 2,5 км
от Рославля 33 км
Категория земель:
земли населенных пунктов.
Разрешенное использование:
индивидуальное жилищное строительство.
Коммуникации:
Электричество – до 15 кВт(3 фазы, разводка до участка), линии электропередач построены, осуществлена фактическая подача напряжения и мощности
Газификация– получены технические условия на подключение (строительство газопровода за собственные средства возможно в любое время, за счет администрации поселения газификация планируется в 2019 году)
Водоснабжение– индивидуальная скважина (устраивается и оплачивается самостоятельно владельцем земельного участка)
Очистные сооружения– индивидуальный септик (устраивается и оплачивается самостоятельно владельцем земельного участка)
Основные достоинства:
- Участки без подряда.
- Ровный рельеф поселка.
- Оптимальные размеры участков.
- Близкое расположение инфраструктуры с.Екимовичи и г.Десногорска.
- Удобный асфальтированный подъезд.
- Внутрипоселковые дороги.
- Удобное транспортное сообщение между городами Десногорск и Рославль.
- Благоприятная экологическая обстановка.
- Окружение живописных пейзажей.
- Небольшая удаленность от Москвы.
Видеоописание поселка: https://www.youtube.com/watch?v=wu9bA2ZADC4
Заинтересовавшимся в приобретении земельных участков в поселке Новые Екимовичи обращаться в офис "ООО Агро", расположенный по адресу: город Рославль, улица Ленина, дом 4, офис 1, телефон 8 (48134) 6-57-78
Схема проезда (Скачать подробно)

24 марта 2018г. Состоялось собрание старост улиц поселка и собственников земельных участков по вопросу газификации улиц Сельская, Мирная, Надежная, В.Теркина, Северная, Депутатская, части улиц Долгая, А.Вавилова, Лесная. Собрание приняло решение о вступлении в областную программу и софинансировании строительства газопровода, которое запланировано на 2019 год.
14 марта 2015г Cостоялось собрание собственников земельных участков. Основным вопросом повестки дня была газификация поселка. (Подробно смотрите во вкладке Газ)
Также обсуждалось дальнейшее развитие поселка. В связи с этим на собрании присутствующие от каждой улицы избирали старосту. Избранные старосты составят инициативную группу поселка. (Информацию о старостах по улицам поселка можно получить во вкладке Контактные данные владельцев участков)
12 января 2015г Получено Положительное заключение ОГАУ «Управление государственной экспертизы по Смоленской области» по объекту «Газопровод среднего и низкого давления для газоснабжения жилой зоны села Екимовичи Рославльского района Смоленской области. II очередь» I часть 167 участков и II часть 435 участков. (С документацией можно ознакомиться во вкладке Газ)
14 октября 2014г. Начато строительство парка культуры и отдыха в центре поселка "Новые Екимовичи". Парковый комплекс площадью 6 000 кв.м., рассчитанный на 800 семей (около 3 000 человек), по планировке включает в себя две детские площадки, две спортивные площадки, одна из которых футбольная, беседки для отдыха, прогулочные зоны. (Фото можно посмотреть во вкладке Фотогалерея)
Август - Сентябрь: Нарезано и отсыпано песчано-гравийной смесью около 5,5 километров дорог по улицам 1 Мая, С.Коненкова, 19 Сентября, пер. 19 Сентября, Энергетиков, Молодежная, части улицы Лесная.
Июнь: Получены Градостроительные планы на все земельные участки, поступающие в продажу, раположенные до улицы Успешной поселка "Новые екимовичи" включительно.
Май: Осуществлена фактическая подача напряжения и мощности по линиям электропередач улиц Сельская, Мирная, Надежная, В.Теркина, Северная, Депутатская, части улиц Долгая, А.Вавилова, Лесная поселка "Новые Екимовичи".
Апрель: Произведено повторное уплотнение и грейдирование дорог (посмотреть фото улиц поселка можно во вкладке Информация по дорогам).
03.03.2014г. Получены первые Градостроительные планы на земельные участки поселка «Новые Екимовичи» (Ознакомиться с примером документа можно во вкладке Документы)
Февраль - Март: Строительство линий электропередач по улицам В.Теркина, Северная, Депутатская, части улицы Лесная поселка "Новые Екимовичи".
14.02.2014г. Состоялось общее собрание собственников земельных участков по вопросу строительства линий электропередач, проходящих по улицам В.Теркина, Северная, Депутатская, Лесная поселка "Новые Екимовичи".
16.01.2014г. Получено заключение «Центра по охране и использованию памятников истории и культуры» об отсутствии на территории поселка «Новые Екимовичи» объектов культурного наследия (памятников истории и культуры). (Ознакомиться с документом можно во вкладке Грунт)
15.01.2014г. Получено Постановление Администрации МО «Рославльский район» Смоленской области «О предварительном согласовании места размещения объекта» – трассы газопровода низкого, среднего и высокого давления для газификации улиц ул.Крылова, ул.Дружбы, ул.Совхозная, ул.Рабочая, ул.Молодежная, ул.Энергетиков, ул.Коненкова, ул.1 Мая, ул.Успешная, ул.Северная, ул.Теркина, ул.Долгая, ул.Надежная, ул.Мирная, ул.Сельская, ул.Дорожная, ул.Депутатская, ул.Лесная, ул.9 Мая, ул.Софиевская, ул.19 Сентября, ул.Вавилова, пер.19 Сентября села Екимовичи, которым утвержден Акт выбора земельного участка под трассу газопровода для газификации вышеперечисленных улиц. (Документы выложены во вкладке Газ)
Январь 2014г. Строительство линий электропередач по улицам Сельская, Мирная, Надежная, части улиц Долгая, А.Вавилова поселка "Новые Екимовичи".
23.12.2013г. Состоялось общее собрание собственников земельных участков по вопросу строительства линий электропередач, проходящих по улицам Сельская, Мирная, Надежная, Долгая, А.Вавилова поселка "Новые Екимовичи".
06.12.2013г. Получены технические условия на присоединение к газораспределительной сети газопровода низкого давления для газоснабжения 167 участков поселка «Новые Екимовичи».
Ноябрь: Строительство линий электропередач запланировано на декабрь 2013г. – январь 2014г. Выделены средства в размере 11 000 000 рублей.
2.10.2013г. В МРСК произведена торгово-закупочная процедура по определению подрядной организации для проведения строительства линий электропередач в поселке «Новые Екимовичи».
Сентябрь: Произведено уплотнение и грейдирование всех отсыпанных дорог.
Июль – август: Нарезано и отсыпано песчано-гравийной смесью более 6 километров дорог по улицам Успешная, Депутатская, Дорожная, Северная, В.Теркина, Надежная, Мирная, А.Вавилова, Лесная, большей части улицы Долгая.
27.06.2013г. Начато согласование Акта выбора земельного участка под трассу газопровода высокого давления для газификации в с.Екимовичи Рославльского района Смоленской области улиц: ул.Крылова, ул.Дружбы, ул.Совхозная, ул.Рабочая, ул.Молодежная, ул.Энергетиков, ул.Коненкова, ул.1 Мая, ул.Успешная, ул.Северная, ул.Теркина, ул.Долгая, ул.Надежная, ул.Мирная, ул.Сельская, ул.Дорожная, ул.Депутатская, ул.Лесная, ул.9 Мая, ул.Софиевская, ул.19 Сентября, ул.Вавилова, пер.19 Сентября.
03.06.2013г. Постановлением Администрации Екимовичского сельского поселения «Об упорядочении адресного хозяйства» земельным участкам поселка Новые Екимовичи присвоены адреса.
С 03.06.2013г. Планируется возобновление работ по строительству грунтовых дорог в поселке Новые Екимовичи.
15.05.2013г. Получили последние свидетельства на участки №1 - 367: категории земель населенных пунктов, разрешенного использования для индивидуального жилищного строительства.
Согласно Решения Совета депутатов Екимовичского сельского поселения №19 от 07.05.2013г. «О присвоении названия улицам села Екимовичи» улицы поселка Новые Екимовичи получили следующие наименования:
1) улица С.Крылова
2) улица Дружбы
3) улица Совхозная
4) улица Рабочая
5) улица Молодежная
6) улица 9 Мая
7) улица Софиевская
8) улица 19 Сентября
9) переулок 19 Сентября
10) улица Энергетиков
11) улица С.Коненкова
12) улица 1 Мая
13) улица Успешная
14) улица Лесная
15) улица Долгая
16) улица Депутатская
17) улица Северная
18) улица В.Теркина
19) улица Дорожная
20) улица Надежная
21) улица Мирная
22) улица Сельская
23) улица Вавилова
Ориентировочно к 15.04.2013г. будут получены свидетельства о праве собственности на земельные участки № 501 - 599: категории земель населенных пунктов, разрешенного использования для индивидуального жилищного строительства. (Свободные земельные участки представлены на схеме и в таблице во вкладке Информация об участках)
04.04.2013г. Начато оформление документов для подключения электричества на территории поселка Новые Екимовичи.
11.03.2013г. Заключен Договор на проведение проектно-изыскательских работ на объекте "Газопровод для газоснабжения жилой зоны села Екимовичи Рославльского района Смоленской области. II-я очередь." (Подробнее во вкладке Газ)
С 11.03.2013г. начато заключение предварительных договоров и продажа земельных участков.
В конце февраля 2013 годаполучены первые свидетельства о праве собственности на земельные участки № 368 - 500: категории земель населенных пунктов, разрешенного использования для индивидуального жилищного строительства. (Ознакомиться с примером документа можно во вкладке Документы)
В августе 2012 года начато строительство первичных дорог в поселке Новые Екимовичи. В сентябре-октябре нарезано и отсыпано песчано-гравийной смесью более 3 километров дорог.
Решением Совета депутатов Екимовичского сельского поселения №21 от 28.09.2012г. "Об утверждении новой редакции Генерального плана Екимовичского сельского поселения Рославльского района Смоленской области" территория поселка Новые Екимовичи включена в село Екимовичи.
Смоленщина всегда была привлекательна своей богатой историей и восхитительной природой, неповторимым и прекрасным обликом окраин. Екимовичское сельское поселение является одним из красивых мест Смоленской земли.
Новый поселок Новые Екимовичи расположен на территории Екимовичского сельского поселения, площадь которого 70 кв. км. В составе сельского поселения 13 населенных пунктов с населением 1730 человек. Но самым густонаселенным, несомненно, является поселок Екимовичи (около 1500 жителей) - административный центр поселения, расположенный на автомагистрали федерального значения Москва - Брест.
Раскинувшийся на правом берегу реки Болдачевки, притока Десны, поселок Екимовичи возник в середине 18 столетия и имеет увлекательную историю. Образование села Екимовичи приписывают местными преданиями монахам-пустынножителям. В старину поселились в здешних местах четыре монаха - Даниил, Яким («хранитель», «стражник»), Савва и Кузьма. У каждого была своя келья с иконой. Не раз после прихода разбойников, сжигавших кельи пустынников, монахам приходилось отыскивать свои иконы в пепле. Впоследствии на могилах пустынножителей построили церкви, а вокруг церквей образовались села, носящие имена пустынников - Даниловичи, Якимовичи, Савеево и Кузьмичи.

Уже в 1796 году в плане социального размежевания в лесных дачах помещиков Броневских Рославльского уезда, близ сельца Якимовичей, значится урочище - ров монахов. Около этого оврага, проходившего дремучим лесом, на его южной окраине около 1793 года поселился монах Никита, где и скончался 29 марта 1793 года. После смерти прах его оказался нетленен, а на его могиле совершались чудеса исцеления. Место это и по сей день чтится верующими. Около 40 лет прожил здесь же ученик отца Никиты монах Досифей, который перешел позже в Оптину Пустынь.

Старые Екимовичи насчитывали всего шесть дворов, в которых проживали церковнослужители: Попов, Романов, Полканов. Кресто-Воздвиженская церковь просуществовала там до 1929 (по другим данным до 1931) года. С 1929 года по 1961 рабочий поселок Екимовичи был районным центром.

Сегодня Екимовичи - самый густонаселенный пункт муниципалитета, и если задаться целью обойти все улицы поселка, то на это придется потратить, как минимум полдня. В административном центре функционируют следующие социально значимые объекты: средняя общеобразовательная школа, предприятие ЖКХ, больница, библиотека, узел связи, почтовое отделение, предприятия торговли, автозаправочные станции. Село расположено в 32 км. от районного центра города Рославля и в 2,5 км. от города Десногорска.

На северо-западе от села Екимовичи, вдоль трассы Екимовичи - Десногорск находятся земельные участки нового поселка Новые Екимовичи. Здесь можно приобрести участок под строительство усадьбы, красивого дома, дачи, магазина или торгового центра. Близость к городу Десногорску, удобное расположение автобусных остановок, сложившаяся инфраструктура, возможность подключения природного газа делают жизнь в поселке Новые Екимовичи комфортной. Проживание в собственном доме выводит жизнь на качественно новый уровень жизни. Природа здешних мест станет долгожданной находкой для современного человека - свежесть смешанного леса, богатого грибами и ягодами, прелесть бескрайних живописных лугов. Исключительно благоприятное расположение участков дает возможность их обладателям наслаждаться чистым воздухом, любоваться великолепными пейзажами. А уникальная история этой земли делает ее неповторимой.
подробнее на публичной кадастровой карте Росреестра http://maps.rosreestr.ru/PortalOnline/?l=13&x=3705781.4635999985&y=7191372.691399999&mls=map|anno&cls=cadastre
и на карте Google http://goo.gl/maps/S66Ub
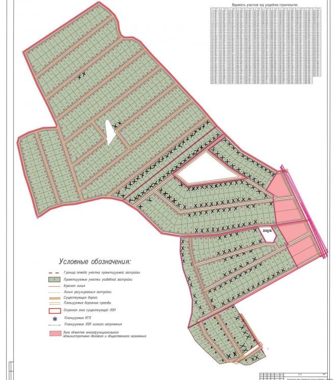
Скачать план-схему расположения земельных участков с таблицей площадей.






В нашей фотогалерее Вашему вниманию представлены тематические фотоальбомы:
1. В центре поселка Новые Екимовичи 14 октября 2014г начато строительство парка культуры и отдыха
2. Облик поселка Новые Екимовичи преображается день ото дня
Скачать подробно фотоальбом "Виды поселка Новые Екимовичи"
3. Поселок Новые Екимовичи активно застраивается

Скачать подробно фотоальбом "Стройка в поселке Новые Екимовичи"
4. Собрание по вопросу строительства линий электропередач: скачать фотоотчет
Во вкладке Информация по дорогам также появились новые фотографии.
В настоящее время в поселке Новые Екимовичи полностью отсыпаны дороги по улицам Успешная, Депутатская, Дорожная, Северная, В.Теркина, Надежная, Мирная, А.Вавилова, большая часть улицы Долгая. Таким образом отсыпанное дорожное полотно составляет более 6 километров. В сентябре 2013г и апреле 2014г произведено уплотнение и грейдирование всех отсыпанных дорог. Скачать подробно



В дальнейшем для получения дорог с твердым покрытием (гравий, асфальт) можно использовать программы развития сельских дорог. Документы можно посмотреть здесь.
Уважаемые жители Новых Екимович, по вопросу подключения коттеджного поселка Новые Екимовичи к центральному водоснабжению города Десногорска нами пока был получен отказ.


По вопросу подключения коттеджного поселка Новые Екимовичи к центральному водоснабжению города Десногорска ведется дальнейшая работа.
Центральное водоснабжение поселка позможно посредством подключения к водонапорной башне села Екимовичи.
Альтернативным решением может быть индивидуальное водоснабжение. Возможно бурить скважины на несколько соседних домовладений. Ориентировочная цена одного метра бурения (включая трубы и расходные материалы) составляет от 1700 до 2700 рублей.
Прилагаем телефоны организаций, занимающихся водоснабжением:
Бурение скважин на воду: 8 961 138 33 60
Бурение скважин на воду: 8 910 712 80 55
Бурение скважин на воду: 8 910 728 14 00
Бурение скважин на воду: 8 910 722 79 99
Бурение скважин на воду: 8 (4812) 63-02-48, 8 903 892 39 93, 8 903 892 93 39
Бурение скважин на воду: 8 910 115 60 55
Бурение скважин на воду: 8 960 589 71 43, 8 962 131 80 77
Колодцы: 8 908 286 22 77
Колодцы: 8 915 637 12 44
Бурение скважин на воду: 8 910 715 81 98
Бурение скважин на воду: 8 908 288 50 43, 8 910 765 08 27
Бурение скважин на воду: 8 919 298 09 65
Бурение скважин на воду: 8 908 281 29 41
Участки поселка Новые Екимовичи относятся к одному из немногих мест рядом с Десногорском, где уровень залегания грунтовых вод низкий, так как поселок расположен на возвышенности по отношению к водохранилищу. Это является неоспоримым преимуществом и решающим фактором при выборе земельного участка под жилищное строительство.
Покупка земли и дальнейшее строительство дома начинается с того, что необходимо обследовать предлагаемые земельные участки и выбрать подходящий из них. С сентября этого года Вы можете воспользоваться услугами наших менеджеров и посмотреть понравившийся участок непосредственно на месте.
Чтобы чувствовать простор в коттеджном поселке и взору открывались приятные картины окружающей природы, земельные участки под строительство должны быть пропорционально-соизмеримы площади будущего дома. Так, для дома или коттеджа площадью 150 – 200 кв. м, земельные участки под строительство ориентировочно должны быть 16 – 22 соток. В поселке Новые Екимовичи Вы сможете выбрать земельный участок от 15 до 25 соток, ориентируясь на свой вкус и возможности.
Земельные участки под строительство, находящиеся в поле, на ровной местности, предполагают равномерное распределение дождевой воды, без ее излишнего накопления в виде долго невысыхающих маленьких озер. Также легко на земельный участок будет заехать транспортом, а также разбить сад и огород на ровной земле. Однако стоит подумать о том, как защитить открытый земельный участок от ветров. Хорошей защитой будет служить плотная посадка деревьев и кустарников по периметру участка. А покупка земли рядом с примыкающим лесом или лесополосой создадут естественный барьер для сильного ветра, а в летний зной это чудесное место, где можно укрыться в тени деревьев. Рельеф поселка Новые Екимовичи ровный, а некоторые участки имеют выход к лесу.
Строительство дома начинается с закладки фундамента. Наиболее надежным основанием для фундамента является однородный грунт, так как он осаждается со временем равномерно и стоящее на нем здание устойчиво.Свойства грунтов и их виды необходимо учитывать при определении конструкции фундамента и глубины его заложения. Поэтому перед тем как начать строить фундамент дома, следует изучить основание под фундамент. Практически это делается путем рытья шурфа для взятия образцов грунта и определения уровня грунтовых вод. Первые 60-80см грунта откапывают лопатой, а затем применяют ручной бур до глубины 2-2,5 метра. Физические и химические свойства грунта помогут точно определить тип фундамента.
На территории поселка Новые Екимовичи почвы преимущественно песчано-суглинистые.

Песчаный грунт это качественное основание под фундамент. Песок хорошо пропускает воду и уплотняется. Чем крупнее фракции песка, тем лучше их можно уплотнить и тем меньше они промерзают. Технологии закладки фундамента здесь могут быть разнообразными – свайные, ленточные, на основе ФБС. Основание под фундамент из крупного песка позволит заложить его на глубину не более 0,4-0,7м.
Расчет фундамента начинают с определения глубины его заложения. Существуют два основополагающих и взаимосвязанных фактора, от которых зависит глубина заложения фундамента.
Первый фактор – уровень залегания грунтовых вод на участке.
Второй фактор – глубина промерзания грунта.
Надо иметь информацию (лучше всего геологические изыскания) о высоте залегания грунтовых вод на участке – чем выше уровень грунтовых вод, тем больше глубина промерзания грунта. Земельный участок с высоким уровнем грунтовых вод (от 2-х метров) или болотистый грунт – не самое лучшее место для строительства. Такой состав грунта потребует хорошей инженерной проработки при возведении фундамента для исключения проседания дома с течением времени и подвижности фундаментной основы в зимний период. В этой ситуации возможно придется отказаться от подвала или принять дополнительные меры по его гидроизоляции, так как весной в подвал может подходить вода.
Болотистый грунт (с высоким уровнем грунтовых вод) легко распознать, он кислый по своему химическому составу и на нем плохо растут деревья, зато превосходно себя чувствуют такие растения как хвощ полевой, щавель, пикульник, вероника, лапчатка, осока, крапива, лютик, люпин, папоротники. Земельный участок с таким составом грунта необходимо будет обработать, Часть грунта придется заменить или перемешать с другими компонентами. Следует также убедиться, что весенние воды не будут затапливать ваш участок и уносить плодородный слой грунта.
На территории поселка Новые Екимовичи (по данным геологических изысканий) уровень залегания грунтовых вод низкий – не менее 15 метров на любом из участков, что весьма благоприятно для строительства фундамента любым способом (свайные, ленточные, на основе ФБС).
Кроме того, песчано-суглинистые почвы идеальны для ведения на участке огорода, разбивки сада, так как подходят широчайшему спектру растений. Суглинок обладает всеми лучшими качествами песчаных и глинистых почв и лишь малой долей их недостатков. Эта почва среднего веса, богатая органическим веществом. Сжатая в горсти, сохраняет форму, но ее легко сделать более рыхлой. В суглинке содержится много органики, а это означает, что почва богата необходимыми питательными веществами и хорошо удерживает влагу. Именно в этом и нуждается большинство растений, на такой почве у них развиваются крепкие корни, здоровые листья и цветы.
Если у Вас теплится надежда жить в собственном доме в окружении экологически безупречной и исключительной по своей красоте природы, приезжайте к нам! Мы подберем для Вас просторный участок в удобном расположении, где Вы воплотите в реальность все свои мечты!
По заключению Центра по охране и использованию памятников истории и культуры на территории поселка Новые Екимовичи (согласно схеме) не отмечено объектов культурного наследия как состоящих на государственном учете, так и вновь выявленных.


1. Территориальная зона Ж1 – зона застройки индивидуальными жилыми домами с индивидуальными земельными участками и блокированными домами с приквартирными участками предназначена для проживания отдельных семей в отдельно стоящих домах усадебного типа и блокированных домах с приквартирными участками с правом ведения ограниченного личного подсобного хозяйства (содержание домашнего скота и птицы), и индивидуальной трудовой деятельностис минимально разрешенным набором услуг местного значения.
2. Перечень видов разрешенного использования объектов капитального строительства и земельных участков территориальной зоны Ж1 установлен в соответствии с таблицей 2.
3.На территориижилой зоны Ж1 в пределах приусадебных участков запрещается размещение закрытых автостоянок для грузового транспорта и транспорта для перевозки людей, находящегося в личной собственности, кроме автотранспорта грузоподъёмностью менее 1,5 т.
Во встроено-пристроенных к дому помещений общественного назначения не допускается размещать специализированные магазины строительных материалов, магазины с наличием в них взрывоопасных веществ и материалов, также предприятий бытового обслуживания, в которых применяются легковоспламеняющиеся жидкости (за исключением парикмахерских, мастерских по ремонту обуви).
На землях общего пользования не допускается ремонт автомобилей, складирование строительных материалов, хозяйственного инвентаря.
Не допускается размещать со стороны улицы вспомогательные строения.
Размещение бань и саун допускается при условии канализования стоков.
Размещение рекламы не допускается на ограждениях участка, дома, строения.
Размещение мелкого скота и птицы в районах индивидуальной застройки усадебного типа допускается при размере приусадебного участка не менее 0,1 га.
4. Дополнительные ограничения использования земельных участков и объектов капитального строительства территориальной зоны Ж1 установлены в статьях 49, 50 – 50.15 Правил.
Таблица 2
|
Отношение к главной функции |
№№ пп |
Виды разрешенного использования территории |
Параметры застройки |
|---|---|---|---|
|
Основные виды |
1. |
Индивидуальное жилищное строительство |
1. Размеры земельных участков: минимальная площадь участков – 400 кв. м; максимальная площадь участков – 4000 кв. м. 2. Коэффициент использования территории- не более 0.67. 3. Этажность – не более 3 этажей. 4. Отступ: а) от жилого дома до красной линии при новом строительстве: - не менее 5 м со стороны улиц; - не мене 3 м со стороны проездов; - в районе существующей застройки – в соответствии со сложившейся ситуацией. б) от хозяйственных построек до красной линии улиц и проездов - не менее 5 м. 5. Минимальное расстояние от границ соседнего участка до: -жилого дома – 3 м; -хозяйственных и прочих строений – 1 м; -открытой автостоянки – 1 м; -отдельно стоящего гаража – 1 м; 6. Минимальное расстояние: а) от окон жилых помещений: - до соседнего жилого дома и хозяйственных строений на соседнем участке – 6м; по противопожарным нормам в зависимости от огнестойкости зданий и сооружений от 6 м до 15м; - до душа, бани и сауны – 8 м; - до построек с содержанием мелкого скота и птицы, уборной, душа, бани и сауны - 12 м; б) от колодца до уборной и компостного устройства – 8 м; в) от погреба до компостного устройства и постройки для содержания мелкого скота и птицы – 12 м. Указанные расстояния должны соблюдаться как между постройками на одном участке, так и между постройками, расположенными на смежных участках. 7. Минимальное расстояние от границ соседнего участка: - до построек для содержания скота и птицы не менее 4 м; - до стволов высокорослых деревьев – 4 м; - до стволов среднерослых деревьев – 2 м; - до кустарников – 1 м. 8. Максимальная высота ограждения со стороны улиц – 2.0 м. Ограждение должно быть прозрачным и выдержанным в едином стиле. Максимальная высота ограждения между соседними участками – 2.0 м. Ограждение между соседними участками должно быть сетчатым или решетчатым, не должно затенять соседний участок. 9. Расстояние между жилыми домами при новом строительстве – в соответствии с нормами противопожарной безопасности, инсоляции и освещенности. 10. При новом строительстве допускается блокировка жилых домов и хозяйственных строений на смежных соседних участках по взаимному согласию владельцев с учетом противопожарных требований. |
|
2. |
Блокированные 2-х квартирные и многоквартирные жилые дома этажностью не выше 3-х этажей с приквартирными участками |
1. Минимальная площадь приквартирных участков – 250 кв. м 2. Коэффициент использования территории: - 1-2-х квартирного, 1-2-х этажного блокированного жилого дома - не более 0.8-1.6; - многоквартирного блокированного жилого дома – не более 0.8. 3. Отступ линии застройки от красной линии: а) при новом строительстве: - не менее 5 м со стороны улиц; - не мене 3 м со стороны проездов; б) в районе существующей застройки – в соответствии со сложившейся ситуацией. 4 Максимальная высота ограждения между соседними приквартирными участками – не более 1.0 м 5. Ограждение между соседними приквартирными участками должно быть прозрачным. Ограждение со стороны улиц, проездов должно быть выполнено в едином стиле. |
|
|
3. |
Здания органов государственной власти, органов местного самоуправления, суда, прокуратуры, охраны правопорядка |
1. Этажность - не более 3-х этажей 2. Высота зданий - не более 15 м 3. Процент застройки устанавливается проектной документацией 4. Отступ застройки от красной линии: а) в районах существующей застройки - в соответствии со сложившейся линией застройки; б) в районах новой застройки: - зданий общеобразовательных учреждений и детских дошкольных учреждений от красной линии – 25 м; - иных зданий – не менее 5 м. 5. Размер земельного участка на одно место: - детские дошкольные учреждения: отдельно стоящие – 30-40 кв. м (в зависимости от вместимости), пристроенные – 22.5 кв. м; - общеобразовательные учреждения – 17-60 кв. м; - магазины: отдельно стоящие – не более 1150 кв. м; встроенно-пристроенные – общей площадью не более 400 кв. м. 6. Поликлиники – общей площадью не более 600 кв. м. |
|
|
4. |
Общеобразовательные учреждения |
||
|
5. |
Детские дошкольные учреждения |
||
|
6. |
Библиотеки, справочные бюро, салоны сотовой связи, фотосалоны, парикмахерские, прачечные, химчистки, пошивочные ателье, мастерские по мелкому бытовому ремонту |
||
|
7. |
Поликлиники, амбулатории, центры медицинских консультаций населения, молочные кухни |
||
|
8. |
Медицинские кабинеты, аптеки, аптечные киоски |
||
|
9. |
Ветеринарные лечебницы для мелких домашних животных без их постоянного содержания |
||
|
10. |
Магазины продовольственные и промтоварные торговой площадью не более 150 кв. м |
||
|
11. |
Объекты гражданской обороны, объекты пожарной охраны (гидранты, резервуары, щиты с инвентарем и другие)
|
||
|
12. |
Парки, зеленые насаждения, элементы озеленения и искусственного ландшафта. |
||
|
13. |
Дорожное полотно автомобильной дороги, автомобильные развязки в разных уровнях и непосредственно примыкающие к автомобильным дорогам строения ( мосты, тоннели, эстакады, путепроводы, сигнальное оборудование, остановочные пункты, стоянки транспортных средств, сооружения предусмотренные для охраны автомобильных дорог, пункты обеспечения безопасности дорожного движения, защитные лесонасаждения, ветро- и шумозащитные устройства и др.) Здания и сооружения, технологически связанные с обеспечением дорожного движения (автовокзалы, автостанции) |
1. Земляное полотно улиц и дорог с проезжей частью, обочинами, системой водоотвода и другими элементами по техническим параметрам, характерным для автомобильных дорог общего пользования, проектируется в соответствии с действующими нормативами и правилами по проектированию автомобильных дорог. 2. Расстояния от бровки земляного полотна для дорог I, II, III категорий: -до жилой застройки – 100 м; -до садоводческих товариществ – 50 м; -для дорог IV категории – соответственно 50 м и 25 м. 3. Полоса зеленых насаждений вдоль дороги со стороны жилой и общественной застройки – шириной не менее 10 м. 4. Наибольшая ширина земляного полотна для: магистралей скоростного движения – 40-65 м, местного грузового движения – 20 м, паркового – 15 м; 5. Увеличение ширины полосы движения на магистральных дорогах с преимущественным движением грузовых автомобилей – до 4 м, при доле большегрузных автомобилей в потоке более 20% –до 4,5 м. 6.На неохраняемых пересечениях автомобильных и железных дорогв одном уровне должна быть обеспечена видимость, при которой водитель автомобиля мог видеть приближающийся поезд не менее чем за 400 м, а машинист приближающегося поезда мог видеть середину переезда на расстоянии не менее 1000 м. 7. Реклама не должна ограничивать видимость технических средств организации дорожного движения или мешать их восприятию участниками движения, не должна размещаться в одном створе с дорожными знаками, вызывать ослепление участников движения светом, в том числе отраженным; при расположении на пролетных строениях инженерных сооружений уменьшать их габариты; располагаться таким образом, чтобы для её восприятия пешеходы были вынуждены выходить на проезжую часть улиц и дорог. Анкерное основание опор рекламных средств не должно выступать над уровнем земли более чем на 20 мм. Удаление рекламного средства от линий электропередачи осветительной сети должно быть не менее 1 м. |
|
|
|
14. |
Дорожное полотно проезжей части улиц с обочинами, тротуарами, велосипедными дорожками, системой водоотвода и иными техническими элементами улично-дорожной сети
|
1. Ширина в красных линиях для: магистральных дорог – 50.0 - 75.0 м; регулируемого движения магистральных улиц – 40.0 – 80.0 м; - транспортно- пешеходных улиц – 35.0 – 45.0 м; - улиц и дорог местного значения – 15.0 -25.0 м; - проездов - 7.0 – 11.5 м. 2. Расстояние от края основной проезжей части магистральных дорог до линии жилой застройки: - не менее 50 м; - при условии применения шумозащитных устройств не менее 25 м. 3. Расстояние от края основной проезжей части улиц и проездов следует принимать не более 25 м. 4. Полоса зеленых насаждений вдоль дороги со стороны жилой и общественной застройки - не менее 10 м; 5. Пешеходные переходы в пределах застроенной территории в одном уровне следует предусматривать с интервалом: - 200-300 м для магистральных улиц и дорог регулируемого движения; - 400-800 м для дорог скоростного движения; - 300-400 м для магистральных улиц непрерывного движения. 6. Остановочные пункты на линиях автобуса следует размещать: - за перекрестком на расстоянии 25 м; - перед перекрестком не менее 40 м. 7. Площадь павильона ожидания остановочных пунктов определяется из расчета 4 чел./кв.м. Минимальное расстояние от павильона до кромки остановочной площадки - 3 м. 8. Остановочные пункты общественного пассажирского транспорта запрещается располагать в охранных зонах высоковольтных линий электропередач. 9. Отстойно-разворотные площадки общественного транспорта из расчета 30 % подвижного состава с учетом норматива 100-200 кв. м на 1 машино-место. Минимальное расстояние от отстойно-разворотной площадки до жилой застройки не менее 50 м. 10. Не допускается размещение зданий и сооружений, временных строений и передвижных предметов (киосков, фургонов, реклам, малых архитектурных форм), деревьев, кустарников высотой более 0,5 м в пределах треугольника видимости со сторонами: - 25х40 м при условии движения «транспорт-транспорт», скорости движения транспорта 40, 60 км/час; - 8х40 м при условии «пешеход-транспорт», скорости движения транспорта 25 км/час; - 10х50 м при условии «пешеход-транспорт», скорости движения транспорта 40 км/час. 11. Устройства от транспортного шума предусматриваются на участках улиц и дорог с превышением уровня транспортного шума более 55 ДБА в ночное время и 65 ДБА в дневное время. 12. Прокладку подземных инженерных сетей следует предусматривать: - совмещенную в общих траншеях; - в тоннелях – при необходимости одновременного размещения тепловых сетей диаметром от 500 до 900 мм, водопровода до 500 мм, свыше десяти кабелей связи и десяти силовых кабелей напряжением до 10 кВ, при реконструкции магистральных улиц и районов исторической застройки, при недостатке места в поперечном профиле улиц для размещения сетей в траншеях, на пересечениях с магистральными улицами и железнодорожными путями; - в тоннелях допускается также прокладка воздуховодов, напорной канализации и других инженерных сетей; - подземную прокладку тепловых сетей допускается принимать совместно со следующими инженерными сетями: в каналах – с водопроводами, трубопроводами сжатого воздуха давлением до 1,6 МПа, мазутопроводами, контрольными кабелями, предназначенными для обслуживания тепловых сетей; в тоннелях – с водопроводами диаметром до 500 мм, кабелями связи, силовыми кабелями напряжением до 10 кВ, трубопроводами сжатого воздуха давлением до 1,6 МПа, трубопроводами напорной канализации. 13. Прокладка трубопроводов тепловых сетей в каналах и тоннелях с другими инженерными сетями, кроме указанных, – не допускается. 14. Совместная прокладка газо- и трубопроводов, транспортирующих легковоспламеняющиеся и горючие жидкости, с кабельными линиями не допускается; 15. Минимальное расстояние от жилой застройки до: - объектов по обслуживанию автомобилей и автобусных вокзалов и парков с ремонтной базой - 300 м; - объектов по обслуживанию легковых и грузовых автомобилей с количеством постов не более 10,таксомоторных парков, стоянокгрузового междугороднего автотранспорта, автозаправочных станций грузового и легкового автотранспорта и автобусных парков до 300 машин, мойки автомобилей с количеством постов от 2 до 5 -100 м; - станций технического обслуживания легковых автомобилейдо 5 постов, мойки автомобилей до 2 постов - 50 м. 16. Зеленые насаждения размещаются в соответствии споперечнымипрофилями улиц и дорог. |
|
|
15. |
Мосты, путепроводы, наземные и подземные пешеходные переходы, пандусы, светофоры, дорожные знаки
|
Габариты искусственных сооружений должны соответствовать ширине проезжей части подходящих улиц с учетом перспективы их развития |
|
|
16. |
Размещение пешеходных переходов на регулируемых общесельских магистралях |
С интервалом 200 - 300 м в одном уровне, при пешеходном потоке через проезжую часть более 3000 чел/час - в разных уровнях |
|
|
17. |
Размещение пешеходных переходов на магистральных улицах непрерывного движения |
В разных уровнях, с интервалом 300 - 400 м, оборудованные лестницами и пандусами |
|
|
18. |
Остановочные павильоны, посадочные площадки общественного транспорта, разворотные площадки |
Прокладка линий общественного транспорта, обустройство остановок осуществляется на основании схем развития сельского транспорта и проектов строительства участков улиц и дорог |
|
|
119. |
Зеленые насаждения |
Посадка защитных зеленых насаждений - в соответствии с поперечными профилями улиц и дорог |
|
|
220. |
Устройства для защиты жилой застройки от транспортного шума, размещаемые |
На участках улиц и дорог |
|
|
221. |
Сооружения и устройства сетей инженерных коммуникаций |
|
|
|
22. |
Здания и сооружения, технологически связанные с обеспечением работы сельского транспорта (автопарки, автостоянки, диспетчерские пункты , объекты дорожного сервиса, автозаправочные станции и др.) |
|
|
|
|
Магистральные сети инженерно-технического обеспечения, включая нефтепроводы, газопроводы, иные трубопроводы, линии электропередачи, воздушные и кабельные линии связи, иные коммуникации инженерной инфраструктуры |
1. Запрещается прохождение высоковольтных линий электропередач (ЛЭП) над зданиями и сооружениями, за исключением выполненных из несгораемых материалов производственных зданий и сооружений промышленных предприятий. Расстояние от крайних проводов ЛЭП должно быть не менее: - 10 м для ВЛ до 20 кВ; - 15 м для ВЛ 35 кВ; - 20 м для ВЛ 110 кВ; - 25 м для 159-220 кВ; - 30 м для 330-500 кВ. При похождении ВЛ вдоль улицы допускается расположение проводов над проезжей частью. Опоры, устанавливаемые на перекрестках, поворотах улиц и проездов должны быть защищены от наезда автотранспорта. Охранные зоны электрических сетей до 1 кВ устанавливаются: - 2 м с каждой стороны вдоль воздушных линий электропередачи; - 1 м с каждой стороны вдоль подземных кабельных линий; - при прохождении в населенных пунктах под тротуарами от крайнего кабеля в сторону здания и сооружения - 0,6 м и 1 м в сторону проезжей части улицы; - 100 м с каждой стороны вдоль подводных кабельных линий электропередачи. Расстояние от жилых домов до трансформаторных подстанций – не менее 10 м при условии обеспечения допустимых уровней шума. 2. Охранная зона газопроводов: - 15 м в каждую стороны для газопроводов высокого давления: - 2 м в каждую стороны для газопроводов низкого давления. Охранная зона трубопроводов транспортирующих нефть, природный газ – 25 м от оси трубопровода с каждой стороны. Минимальные расстояния по санитарно-гигиеническим требованиям от магистральных газопроводов: а) не содержащих сероводород определяется с учетом диаметра трубы и класса трубопровода: - от населенных пунктов – 75-350 м; - от отдельных малоэтажных зданий- 75-300 м; - от рек и водоемов – 25 м; б) сжиженных углеводородных газов: - до населенных пунктов –150-1000 м; - дачных поселков – 100-800 м; в) низкого давления: - до многоэтажных жилых и общественных зданий – 50м; - малоэтажных зданий-20 м; - до водозаборных сооружений 30 м с учетом требований по организации зон охраны источников водоснабжения. 3. Охранная зона кабельных и воздушных линий связи и радиофикации: - вне населенных пунктов – по 2 м с каждой стороны от кабеля; - при переходе через реки, озера, водохранилища – по 100 м с каждой стороны; - в лесных массивах и зеленых насажде-ниях создаются просеки шириной: - не менее 4 м при высоте деревьев до 4 м; - не менее 6 м вдоль кабеля связи и при высоте деревьев более 4 м. 4. Санитарно-защитная зона для канализационных очистных сооружений устанавливается в зависимости от типа очистных сооружений и их мощности -100-500 м. 5. Зона санитарной охраны: - водозаборных сооружений 1 пояса – 30 м или 50 м, а 2 и 3 пояса - расчетом; - водонапорной башни - не менее 10 м; - отстойников, реагентного хозяйства, склада хлора, насосных станций – 15 м. Охранная зона магистрального водовода -10-20 м с каждой стороны. |
|
|
223. |
Мосты, путепроводы, наземные и подземные пешеходные переходы, пандусы, светофоры, дорожные знаки
|
Габариты искусственных сооружений должны соответствовать ширине проезжей части подходящих улиц с учетом перспективы их развития |
|
|
224. |
Размещение пешеходных переходов на регулируемых общесельских магистралях |
С интервалом 200 - 300 м в одном уровне, при пешеходном потоке через проезжую часть более 3000 чел/час - в разных уровнях |
|
Вспомогательные
|
1. |
В пределах индивидуального или приквартирного участка:
|
|
|
Отдельно стоящие или встроенные в жилые дома гаражи или открытые автостоянки |
Вместимость гаражей: на индивидуальный участок – на 2 транспортных средства; на приквартирный участок – на 1 транспортное средство |
||
|
|
|
||
|
Строения для содержания скота и птицы |
|
||
|
Сады, огороды, палисадники |
|
||
|
Теплицы, оранжереи |
|
||
|
Индивидуальные резервуары для хранения воды, скважины для забора воды, индивидуальные колодцы |
|
||
|
Индивидуальные бани, надворные туалеты |
|
||
|
Площадки для сбора мусора |
|
||
|
Скульптура и скульптурные композиции, фонтаны и другие объекты ландшафтного дизайна |
|
||
|
2. |
Хозяйственные постройки и отдельно стоящие хозяйственные корпуса общественных зданий |
|
|
|
3. |
Гаражи служебного автотранспорта |
|
|
|
4. |
Гостевые автостоянки |
Вместимость не более 10 машино-мест. Минимальное расстояние: - от жилых домов и общественных зданий – 10 м; - детских, общеобразовательных учреждений, лечебных, спортивных сооружений и мест отдыха – 25 м. |
|
|
5. |
Сооружения локального инженерного обеспечения |
|
|
|
6. |
Здания и сооружения для размещения служб охраны и наблюдения |
|
|
|
7. |
Здания и помещения жилищно-эксплуатационных и аварийно-диспетчерских служб |
|
|
|
8. |
Открытые площадки для занятий спортом и физкультурой |
Минимальное расстояние от жилых и общественных зданий в зависимости от шумовых характеристик от 10 до 40 м. |
|
|
9. |
Школьные сады |
|
|
|
10. |
Учебно-тренировочные комплексы |
|
|
|
11. |
Склады инвентаря |
|
|
|
12. |
Площадки для сбора мусора |
Площадки для сбора мусора - из расчета 1 контейнер на 10-15 семей. Расстояние до границ участков жилых домов не менее 20 м, но не более 100 м, детских учреждений, площадок отдыха – не менее 25 м. |
|
|
Условно разрешенные |
1. |
Хозяйственные постройки для ведения индивидуальной трудовой деятельности без применения пожароопасных или санитарно-вредных материалов |
|
|
2. |
Клубы многоцелевого и специализированного назначения |
|
|
|
3. |
Гостиницы |
|
|
|
4. |
Отделения банков |
|
|
|
5. |
Магазины торговой площадью более 150 кв. м |
|
|
|
6. |
Физкультурно-спортивные комплексы |
|
|
|
7. |
Больницы, диспансеры, пункты оказания скорой медицинской помощи, санитарно-эпидемиологические станции |
|
|
|
8. |
Пожарные части, здания для размещения подразделений пожарной охраны |
Отступ от красной линии не менее 10 м |
|
|
9. |
Бассейны общего пользования |
|
|
|
10. |
Бани, сауны общего пользования |
|
|
|
11. |
Предприятия общественного питания |
Вместимостью не более 16 посадочных мест |
|
|
12. |
Автомойки мощностью не более двух постов |
|
|
|
13. |
Гаражи подземные, полузаглубленные, многоэтажные |
|
|
|
14. |
Культовые сооружения и объекты |
|
|
|
15. |
Производственные, коммунальные |
Класс санитарной вредности - не выше V |
В настоящее время электрифицирова большая часть поселка "Новые Екимовичи". Линии электропередач построены по улицам Сельская, Мирная, Надежная, А.Вавилова, Долгая, В.Теркина, Северная, Депутатская, Лесная, Успешная. Осуществлена фактическая подача напряжения и мощности. Электрические подстанции установлены в районе участков №477 и №589:


Уважаемые владельцы земельных участков поселка Новые Екимовичи!
Коордионатор по вопросу подключения электричества среди жителей поселка "Новые Екимовичи" - Кашкаров Алексей Александрович.
Контактный телефон - 8 915 657 11 32.
Для всех заключивших с МРСК Центра Договора на технологическое подключение будет полезной ПАМЯТКА о порядке дальнейших действий по подключению электроэнергии к строительной площадке на земельном участке.
Просьба всем, кто еще не заключил с МРСК договор на технологическое присоединение к электрическим сетям, подать заявку в самое ближайшее время!
Технологическое присоединение:
Технологическое присоединение - комплексная услуга, оказываемая сетевыми компаниями юридическим и физическим лицам для выдачи электрической мощности и предусматривающая фактическое присоединение энергопринимающих устройств (энергетических установок) потребителей к объектам сетевого хозяйства.
Обратиться с заявлением на технологическое присоединение можно либо, непосредственно в самом с. Екимовичи по адресу: с. Екимовичи, ул. Б.Советская, 105 (местное РЭС), тел. (48134) 5-95-98; либо в г.Рославле по адресу: г.Рославль, ул.Энергетиков, д.18а, тел. (48134) 6-41-23.
Услуга по технологическому присоединению оказывается вновь присоединяемым потребителям, а также потребителям, нуждающимся в увеличении потребляемой мощности, и включает в себя целый комплекс мероприятий, таких как:
- подача клиентом заявления и пакета документов в сетевую компанию:
Скачать образец заявления можно на сайте МРСК Центра: http://www.mrsk-1.ru/ru/clients/fitting/forms/ или здесь.
1. Личный паспорт (копия делается на ксероксе 2,3,5 лист);
2. Свидетельство на право собственности на землю + копия;
3. Кадастровый паспорт 2 листа (кадастровый паспорт заказывается на свое имя, можно заказать в г. Рославле по адресу: 34 микрорайон, д.3, здание МФЦ: тел: (48134)2-02-03 или 2-17-60, либо в Десногорском филиале СОГБУ МФЦ по адресу: 3 микрорайон, д. 16-а (пристройка к дому), тел.: (48153) 7-45-65.
4. Ситуационный план (Выкипировку из межевого досье), можно взять из приложения к предварительному договору купли-продажи, либо обратиться в офис ООО "Агро" по адресу: г. Рославль, ул.Советская, д.82.
- заключение договора на технологическое присоединение и согласование технических условий;
- выполнение сторонами договора соответсвующих мероприятий;
- получение разрешения на допуск в эксплуатацию объектов;
- фактическое присоединение энергопринимающего устройства потребителя к электрической сети сетевой организации;
- составление Акта о технологическом присоединении.
За пояснениями и справками можно обратиться по тел: (48134)6-57-78, офис ООО "Агро".
Получить дополнительную информацию по вопросам осуществления технологического присоединения можно, обратившись в Центр обслуживания клиентов филиала ОАО "МРСК Центра" - Смоленскэнерго (в Рославле или Екимовичах), а также по единому бесплатному телефону прямой линии энергетиков 8-800-50-50-115.
Свежие новости: 24.03.2018г. состоялось собрание старост улиц поселка и собственников земельных участков по вопросу газификации улиц Сельская, Мирная, Надежная, В.Теркина, Северная, Депутатская, Успешная, части улиц А.Вавилова, Долгая и Лесная. Собрание приняло решение о вступлении в областную программу и софинансировании строительства газопровода, которое по программе возможно в 2019 году (при наличии проекта и софинансирования). За более подробной информацией, а также чтобы принять участие в софинансировании, просьба обращаться к старостам улиц.
По решению общего собрания собственников земельных участков п. «Новые Екимовичи», проходившего 14 марта 2015г, было отправлено коллективное обращение в районную и областную администрации по вопросу газификации улиц поселка в рамках областной государственной программы.
27.04.2015г получен ответ Губернатора Смоленской области. Письмо можно посмотреть здесь.
Уважаемые собственники земельных участков в с.Екимовичи 14 марта 2015г состоялось общее собрание по вопросу газификации поселка. Фотоотчет собрания можно посмотреть здесь.
Глава Екимовичского сельского поселения Рославльского района Филин И.И. о дальнейших планах газификации поселка "Новые Екимовичи": http://www.youtube.com/watch?v=piu71Fv8hBI&feature=youtu.be
Убедительная просьба для всех, кто не присутствовал на собрании, в ближайщее время приехать в наш офис по адресу: г.Рославль, ул.Ленина, д.4, оф.1 для ознакомления и подписания документации по газификации поселка.
Уважаемые покупатели и владельцы земельных участков поселка "Новые Екимовичи"!
Проектная документация по объекту «Газопровод среднего и низкого давления для газоснабжения жилой зоны села Екимовичи Рославльского района Смоленской области. II очередь» прошла госэкспертизу.
12 января 2015г получено Положительное заключение ОГАУ «Управление государственной экспертизы по Смоленской области» I часть 167 участков и II часть 435 участков.
Положительное заключение I часть 167 участков Проектная документация без сметы скачать подробнее
Положительное заключение I часть 167 участков Сметная документация скачать подробнее
Положительное заключение II часть 435 участков Проектная в Проектная ППпппппдокументация без сметы скачать подробнее
Положительное заключение II часть 435 участков Сметная документация скачать подробнее Положительное заключение I часть 167 участков Сметная документация скачать подробнее СмСсСссСссссссмммм
За прошедший 2014 год по формированию документации для газификации поселка "Новые Екимовичи" проделана большая работа.
Первая очередь газификации поселка успешно завершена: Газопровод для газификации жилых домов по улицам Веселая, Солнечная, Нагорная, строителей, пер. Строителей построен.

Нами получены следующие документы:
1) Технические условия для проектирования распределительного газопровода высокого и среднего давления для газоснабжения с.Екимовичи Скачать ,
2) Технические условия на присоединение к газораспределительной сети газопровода низкого давления для газоснабжения 435 участков поселка Скачать ,
3) Градостроительный план земельного участка под трассу газопровода высокого и среднего давления для газификации жилых домов с.Екимовичи по улицам Крылова, Дружбы, Совхозная, Рабочая, Молодежная, Энергетиков, Коненкова, 1 Мая, Успешная, Северная, В.Теркина, Долгая, Надежная, Мирная, Сельская, Дорожная, Депутатская, Лесная, 9 Мая, Софиевская, 19 Сентября, А.Вавилова, пер.19 Сентября Скачать
Согласно схеме градостроительного плана для поселка "Новые Екимовичи" планируется строительство 2-х газорегуляторных пунктов высокого и среднего давления.
И наконец, в октябре 2014 года получена проектная документация на объект "Газопровод среднего и низкого давлений для газоснабжения жилой зоны села Екимовичи Рославльского района Смоленской области, II очередь, в 2-х частях: I часть - 167 участков, II часть - 435 участков "
15.01.2014г. Получено Постановление Администрации МО «Рославльский район» Смоленской области «О предварительном согласовании места размещения объекта» – трассы газопровода низкого, среднего и высокого давления для газификации улиц ул.Крылова, ул.Дружбы, ул.Совхозная, ул.Рабочая, ул.Молодежная, ул.Энергетиков, ул.Коненкова, ул.1 Мая, ул.Успешная, ул.Северная, ул.Теркина, ул.Долгая, ул.Надежная, ул.Мирная, ул.Сельская, ул.Дорожная, ул.Депутатская, ул.Лесная, ул.9 Мая, ул.Софиевская, ул.19 Сентября, ул.Вавилова, пер.19 Сентября села Екимовичи, которым утвержден Акт выбора земельного участка под трассу газопровода для газификации вышеперечисленных улиц.




06.12.2013г. Нами получены технические условия на присоединение к газораспределительной сети газопровода низкого давления для газоснабжения 167 участков поселка «Новые Екимовичи»:


Порядок газификации:
ПОЛОЖЕНИЕ о газификации домов частного сектора на территории Смоленской области 1. Проектирование газоснабжения частных домов, в том числе и уличных газопроводов за личные средства населения, производится на основании письменного заявления домовладельца (домовладельцев) по техническим условиям, выданным газовыми хозяйствами. 2. При газификации частных домов со строительством уличных газопроводов, газопроводов-вводов и монтажом внутридомового оборудования, заказчиками выступают домовладельцы. По вопросу проектирования и строительства уличного газопровода домовладельцы проводят общее собрание, на котором выбирают уполномоченного с правом представительства интересов всех заказчиков на период газификации. Оформленный протокол собрания, Постановление Главы Муниципального образования, а также разрешение на подключение к существующим сетям газоснабжения (при необходимости) Заказчик передает в подразделение газового хозяйства для получения технических условий на газификацию. 3. Проектирование объектов газоснабжения производится проектной организацией на основании заявления Заказчика. К заявлению прилагаются:
4. Выполнение строительно-монтажных работ за личные средства населения по газификации частных домов, в том числе и строительство уличных газопроводов, производится силами специализированных строительных организаций. 5. Уличные газопроводы и подводки к жилым домам после приемки их в эксплуатацию остаются в собственности домовладельцев. Подключение к газопроводам потребителей природного газа, не принимавших участие в финансировании данных объектов, производится ОАО «Смоленскоблгаз» с письменного согласия владельцев или их представителя. 6. Заказчиками по строительству уличных газопроводов могут выступать также организации газового хозяйства, предприятия, администрации и т.д. 7. На уличные газопроводы и подводки к жилым домам, остающиеся в собственности физических или юридических лиц, до пуска их в эксплуатацию необходимо оформить договор безвозмездного пользования с приложением акта приема-передачи или договор на техническое обслуживание принимаемого в эксплуатацию газопровода. 8. Пуск газа производится при наличии:
ПОРЯДОК врезки и первичного пуска газа для физических лиц Врезка и первичный пуск газа осуществляется ОАО «Смоленскоблгаз» на основании подписанного договора с ООО «Газпром межрегионгаз Смоленск» на поставку газа.
Для заключения договора на поставку газа физическое лицо представляет в ООО «Газпром межрегионгаз Смоленск» :
1. Документы, подтверждающие право собственности заявителя в отношении помещений, газоснабжение которых надо обеспечить. 2. Личный паспорт. 3. Справку о составе семьи или домовую книгу. 4. Документы, подтверждающие меры социальной поддержки по оплате за газ (в случае предоставления таких мер). 5. Справку, подтверждающую наличие или отсутствие сельскохозяйственных животных или птиц. 6. Копию проекта и акта приемки объекта в эксплуатацию. 7. Паспорта на все установленное газовое оборудование. 8. Договор на техническое обслуживание с эксплуатационной организацией. 9. Акт о границе раздела собственности.
Основание: Постановление Правительства РФ от 21.07.2008 г. № 549
В настоящий момент заключен договор на проведение проектно-изыскательских работ на объекте "Газопровод для газоснабжения жилой зоны села Екимовичи Рославльского района Смоленской области. II-я очередь". После изготовления проект будет направлен на госэкспертизу и включен в федеральную программу "Социальное развитие села" Подробнее можно посмотреть ЗДЕСЬ
После того как Вами получены правоустанавливающие документы на земельный участок (после государственной регистрации в Управлении Федеральной службы государственной регистрации, кадастра и картографии) и кадастровым инженером осуществлен вынос в натуре Вашего земельного участка можно непосредственно подходить к строительству на своем участке.
Первым этапом в процессе строительства индивидуального жилого дома является получение разрешения на строительство. Правовой базой в этом вопросе, главным образом, является статья 51 Градостроительного кодекса РФ.
Разрешение на строительство - это документ, который удостоверяет соответствие проектной документации (в нашем случае – схемы планировочной организации земельного участка с обозначением места размещения индивидуального жилого дома (см. пункт 3 в списке Документов для получения разрешения на строительство) требованиям градостроительного плана земельного участка и дающий застройщику право осуществлять строительство.
Нужно ли разрешение на строительство индивидуального жилого дома?
Перед тем, как обращаться за получением разрешения на строительство, Вам необходимо понять требуется ли это в Вашем случае.
Во-первых, необходимо обратить внимание на вид разрешенного использования земельного участка, на котором планируется строительство дома. Если участок был предоставлен для индивидуального жилищного строительства, то по общим правилам получение разрешения на строительство требуется. Если земельный участок предоставлялся для ведения садоводства или дачного хозяйства, то получение разрешения на строительство дома не требуется.
Во-вторых, чтобы ответить на поставленный вопрос, нужно уяснить о каком объекте строительства идет речь. Если Вы планируете строить гараж, или объект, не являющийся объектом капитального строительства, а также строение или сооружение вспомогательного использования, то разрешение на строительство Вам не нужно.
В-третьих, Вы, наверное, слышали о «дачной амнистии». Ее смысл, в частности, заключается в том, что для регистрации права собственности на индивидуальный жилой дом либо объект, созданный на земельном участке, расположенном в черте поселения и предназначенном для ведения личного подсобного хозяйства (на приусадебном земельном участке) не требуется предоставление разрешения на ввод объекта в эксплуатацию. Сразу заметим, что для того, чтобы получить разрешение на ввод объекта в эксплуатацию необходимо предоставить, в том числе, разрешение на строительство.
В соответствии же с «дачной амнистией», а точнее в соответствии с Федеральным законом от 30 июня 2006 года N 93-ФЗ в редакции Федерального закона от 17.07.2009 № 174-ФЗ для государственной регистрации права собственности нужно предоставить документы, подтверждающие факт создания такого объекта недвижимого имущества и содержащие его описание. До 1 марта 2015 года кадастровый паспорт индивидуального жилого дома является единственным документом, подтверждающим факт создания такого объекта и содержащим его описание.
Таким образом, если Вы сможете завершить строительство и подать документы на государственную регистрацию права собственности до 1 марта 2015 года, то получать разрешение на строительство нет необходимости. Нужно сделать еще одну оговорку, что вышеуказанное справедливо, если Вы не планируете совершать сделки с недостроенным домом, иначе для регистрации объекта незавершенного строительства Вам необходимо будет разрешение на строительство.
Документы для разрешения на строительство индивидуального жилого дома:
Для получения разрешения на строительство дома необходимо предпринять следующие действия:
Шаг 1: Получение градостроительного плана:
Для получения градостроительного плана необходимо предоставить
в Комитет по строительству и архитектуре по адресу: г. Рославль, ул. Ленина, д.2, (тел. (48134) 4-14-44) 1-й этаж (Приемные дни: Среда с 9.00 до 17.30, Пятница с 9.00 до 13.00 (с 13.00 до 14.00 обед)
Заявление на получение градостроительного плана от всех правообладателей земельного участка, к которому приложить копии документов:
(Заявление со всеми прилагающимися документами после предварительного осмотра специалистами комитета сдать в Администрацию МО «Рославльский район» по адресу: г.Рославль, пл.Ленина, д.1 в окно приема заявлений)
Шаг 2: Получение разрешения на строительство:
Для получения разрешения на строительство необходимо предоставить
в Комитет по строительству и архитектуре по адресу: г. Рославль, ул. Ленина, д.2, (тел. (48134) 4-14-50 Кондратенко Евгений Иванович) 2-й этаж (Приемные дни: Понедельник, Вторник, Среда с 9.00 до 18.00 (обед с 13.00 до 14.00) следующие документы:
1) Заявление на получение разрешения на строительство от всех правообладателей земельного участка, к которому приложить копии документов:
2) Схему планировочной организации земельного участка с обозначением места размещения индивидуального жилищного строительства.
Схему планировочной организации земельного участка можно заказать в организации, например:
- ООО «ТрейдСмолМаркет» контактные телефоны: 8-920-300-06-78, 8-908-283-96-52;
- ООО «Электросетьремонт» контактный телефон: 8 910 716 35 90.
Перечень необходимых документов для получения схемы планировочной организации (копии):
- градостроительный план земельного участка с приложениями
- кадастровый паспорт земельного участка
-топографическая съемка земельного участка (+ соседние).
(Заявление на получение разрешения на строительство со всеми прилагающимися документами сдать в Администрацию МО «Рославльский район» по адресу: г.Рославль, пл.Ленина, д.1 в окно приема заявлений)
При этом должностные лица не вправе требовать иные документы для получения разрешения на строительство, за исключением вышеперечисленных.
Комитет по строительству и архитектурепроверяет, во-первых, наличие всех необходимых документов, приложенных к заявлению; во-вторых, соответствие схемы планировочной организации земельного участка с обозначением места размещения индивидуального жилого дома требованиям градостроительного плана земельного участка.
Если все документы имеются, и никаких несоответствий не выявлено в течение десяти дней со дня получения заявления о выдаче разрешения на строительство такое разрешение должно быть выдано заявителю.
Если Вам не выдают разрешение на строительство, значит, должны выдать мотивированный отказ в выдаче такого разрешения. Причинами отказа в выдаче разрешения на строительство может быть либо представление неполного пакета документов, либо несоответствие представленных документов требованиям градостроительного плана земельного участка.
Отказ в выдаче разрешения на строительство – это документ, который может быть обжалован в суде, поэтому если Вам не выдают разрешение, то обязательно нужно получить документ об отказе.
Обращаем Ваше внимание, что в соответствие с Градостроительным кодексом выдача разрешения на строительство осуществляется бесплатно.
Разрешение на строительство индивидуального жилого дома выдается на десять лет.
Согласно ст. 30 Лесного кодекса Российской Федерации (федеральный закон № 200-ФЗ от 04.12.2006 г.) граждане могут осуществлять заготовку древесины для собственных нужд на основании договоров купли-продажи лесных насаждений:
Лесной кодекс РФ Статья 30. Заготовка гражданами древесины для собственных нужд.
1. Граждане вправе заготавливать древесину для целей отопления, возведения строений и иных собственных нужд…
3. К заготовке гражданами древесины для собственных нужд не применяются части 1, 2и 7статьи 29 настоящего Кодекса.
4. Граждане осуществляют заготовку древесины для собственных нужд на основании договоров купли-продажи лесных насаждений.
5. Порядок и нормативы заготовки гражданами древесины для собственных нужд устанавливаются законами субъектов Российской Федерации… (в ред. Федерального законаот 28.12.2013 N 406-ФЗ)
В Смоленской области эта сфера регулируется Законом Смоленской области от 29 ноября 2007г. № 135-з «О порядке и нормативах заготовки гражданами древесины для собственных нужд на территории Смоленской области». Согласно этому законодательному акту для строительства жилых домов, заключив договор купли-продажи лесных насаждений, можно получить до 75 кубических метров древесины на семью или одиноко проживающего гражданина один раз в 50 лет.
Таким образом, чтобы получить лес на строительство жилого дома в соответствии с Порядком заключения гражданами договоров купли-продажи лесных насаждений для собственных нужд на территории Смоленской области, утвержденным Постановлением Администрации Смоленской области от 14 января 2008г. №1:
п.3. Гражданин, заинтересованный в заготовке древесины для собственных нужд, подает в орган исполнительной власти Смоленской области, уполномоченный на выполнение исполнительно-распорядительных функций в сфере лесных отношений (Рославльскоелесничество-филиал ОГУ «Смолупрлес»), заявление о заключении договора купли-продажи , в котором указываются следующие сведения:
а) фамилия, имя, отчество гражданина, его адрес, данные документа, удостоверяющего личность;
б) наименование лесничества (лесопарка), в границах которого предполагается осуществить куплю лесных насаждений;
в) требуемый объем древесины и ее качественные показатели.
п.4. К заявлению прилагаются следующие документы:
а) при заготовке древесины для строительства, ремонта или реконструкции жилых домов
- --копия разрешения на строительство, выданного в установленном порядке;
- --копия паспорта;
- --копия свидетельства о праве собственности на земельный участок.
п.5. Заявление и прилагаемые к нему документы рассматриваются уполномоченным органом в течение 15 календарных дней с даты получения заявления. По результатам рассмотрения выносится решение о подготовке проекта договора купли-продажи, в котором указывается сумма, подлежащая уплате гражданином, либо заявление возвращается гражданину. Плата по договору купли-продажи лесных насаждений для собственных нужд определяется по ставкам, действующим на момент заключения договора на основании Постановления Администрации Смоленской области «Об утверждении ставок платы за единицу объема древесины по договорам купли-продажи лесных насаждений для собственных нужд на территории Смоленской области».
О принятом решении о подготовке проекта договора купли-продажи уполномоченный орган информирует гражданина в письменной форме в установленный областным законом срок, оформляет договор купли-продажи (подписывает со своей стороны) и направляет его в соответствующее лесничество для передачи гражданину. После чего гражданин в удобное для него время обращается в лесничество для получения договора купли-продажи.
Контакты:
Рославльское лесничество-филиал ОГУ «Смолупрлес» 216507 г.Рославль, Астапковичский переезд
8 (48134) 2-04-89, 2-07-37 Моисеев Александр Андреевич, лесничий; Новиков Сергей Владимирович, специалист.
Описание поселка "Новые Екимовичи" скачать
Коттеджный поселок Новые Екимовичи – это около 400 земельных участков, которые размежеваны и оформлены в полном соответствии с действующим законодательством: право собственности зарегистрировано, все необходимые документы – свидетельства о государственной регистрации права, кадастровые паспортa , градостроительные планы – получены. Собственники – физические лица, участки продаются напрямую без посредников.
Земельные участки Новых Екимовичей относятся к землям поселений, включены в генеральный план села Екимовичи и предназначены для индивидуального жилищного строительства. Согласно Решения Совета депутатов Екимовичского сельского поселения № 19 от 07.05.2013г. «О присвоении названия улицам села Екимовичи» улицы будущего поселка Новые Екимовичи получили наименования. Постановлениями Администрации Екимовичского сельского поселения всем земельным участкам присвоены адреса. Все предлагаемые земельные участки без подряда, что дает полную свободу выбора при архитектурном проектировании и строительстве дома. Расположение в черте села Екимовичи позволяет беспрепятственно провести коммуникации к будущему коттеджному поселку, что само по себе дает возможность использовать участки не только для досуга, как дачные, но и для постоянного места проживания.
Детально продуманный генеральный план создает наиболее комфортные условия для проживания. Одним из важнейших критериев выбора этого места является его транспортная доступность – удобный съезд с трассы, добротные внутрипоселковые дороги позволяют с комфортом добраться до Вашего будущего участка
Для газификации поселка за счет бюджетных средств необходимо войти в государственную программу газификации. Ориентировочно планируется в 2016 году. В настоящее время вся проектная документация по объекту «Газопровод среднего и низкого давления для газоснабжения жилой зоны села Екимовичи Рославльского района Смоленской области. II-я очередь» прошла государственную экспертизу, получены технические условия на подключение (смотрите вкладку Газ). Строительство газопровода за собственные средства возможно в любое время.
Большая часть поселка электрифицирована: линии электропередач построены по улицам Сельская, Мирная, Надежная, А.Вавилова, Долгая, В.Теркина, Северная, Депутатская, Успешная, части улицы Лесная. Осуществлена фактическая подача напряжения и мощности.
Ведется работа по вопросу подключения поселка Новые Екимовичи к центральному водоснабжению. Альтернативным решением может быть индивидуальное водоснабжение (индивидуальная скважина).
В октябре 2014г начато строительство парка культуры и отдыха в районе улиц Успешная, Северная, Депутатская поселка. Парковый комплекс площадью 6 000 кв.м., рассчитанный на 800 семей (около 3 000 человек), по планировке включает в себя две детские площадки, две спортивные площадки, одна из которых футбольная, беседки для отдыха, прогулочные зоны.
Коттеджный поселок Новые Екимовичи имеет исключительно удобное месторасположение: эти живописные места окружает дивная природа – прекрасные виды открываются отовсюду, а некоторые из участков даже имеют собственный выход к лесу. За счет отсутствия крупных промышленных предприятий экологическая обстановка в этих местах – одна из лучших в области. С другой стороны поселок непосредственно прилегает к селу Екимовичи, где функционируют следующие социально значимые объекты: средняя общеобразовательная школа, предприятие ЖКХ, больница, библиотека, узел связи, почтовое отделение, предприятия торговли, автозаправочные станции. Интерес вызывает историческое достояние местности.
Покупка земельного участка в коттеджном поселке Новые Екимовичи – это весьма перспективное вложение средств, прекрасная возможность приобретения качественного товара по приемлемой цене. Это возможность строительства загородного дома в непосредственной близости от лесного массива по собственному проекту с правом регистрации и постоянного проживания в нем, возможность сочетать комфорт современной цивилизации и каждодневное соприкосновение с природой.
Торопитесь совершить выгодное приобретение - спешите выбрать лучшие по расположению участки!
Черным крестиком на плане обозначены проданные и пзарезервированные участки, буквой "Т" - планируемое размещение электрических подстанций. В верхнем правом углу плана таблица с площадями участков.
Для удобства работы с планом его надо скачать и увеличить
Более подробную информацию о зарезервированных и проданных участках можно получить, скачав таблицу здесь.
Управление Федеральной службы государственной регистрации, кадастра и картографии по Смоленской области
Адрес: 216500, г. Рославль, ул. Ленина, 15а
Официальный сайт: http://to67.rosreestr.ru/
ФИО руководителя структурного подразделения: Рясной Геннадий Николаевич (48134) 6-66-68
Телефоны для справок: (48134) 6-66-68, (48134) 6-76-97, (48134) 6-76-21
Управление Федеральной службы государственной регистрации, кадастра и картографии по Смоленской области осуществляет прием и выдачу документов в СОГУ «Рославльском многофункциональном центре»
Адрес: 216500, Смоленская область, г.Рославль, микрорайон 34, д3.
Официальный сайт: http://мфц67.рф/
ФИО руководителя филиала: Никитин Евгений Сергеевич
Телефоны для справок: (48134) 4-17-40, (48134) 4-03-40, (48134)2-02-03
График приема физических лиц для Управления Федеральной службы государственной регистрации, кадастра и картографии по Смоленской области:
На сдачу документов: в порядке живой очереди – Понедельник – Суббота с 9:00 до 18:00
На получение документов: Кабинет юриста – Вторник – Пятница с 11.00 до 18.00
Адрес: 216533, Смоленская область, Рославльский район, с. Екимовичи, ул.Комсомольская, д.14а
E-mail: Этот e-mail адрес защищен от спам-ботов, для его просмотра у Вас должен быть включен Javascript
Официальный сайт: www.ekimovichskoe.roslavl.ru
Лекторова Наталья Андреевна - Глава Администрации Екимовичского сельского поселения (48134) 5-57-90
Козаева Валентина Алексеевна - старший менеджер (48234) 5-57-35
Комарова Людмила Александровна - специалист 1 категории (48234) 5-57-08

Административный регламент Администрации Екимовичского сельского поселения Рославльского района Смоленской области по осуществлению муниципальной услуги «Присвоение наименований улицам, площадям и иным территориям проживания граждан, установление нумерации домов на территории муниципального образования Екимовичского сельского поселения Рославльского района Смоленской области» информирует:
График (режим) приема заинтересованных лиц по вопросам предоставления муниципальной услуги должностными лицами Администрации Екимовичского сельского поселения:
Приемные дни:
понедельник – четверг с 9.00 до 18.00
пятница с 9.00 до 17.00
Обеденный перерыв: 13.00-13час.45 мин.
Выходные дни: суббота, воскресенье
Тел/факс 8-48-134-5- 57-08
Для получения муниципальной услуги по присвоению адреса земельному участку Заявитель представляет:
- заявление в свободной форме от каждого из собственников земельного участка;
- копии правоустанавливающих документов на земельный участок.
Ознакомиться с перечнем и образцами документов можно на информационном стенде в Администрации Екимовичского сельского поселения. Образец заявления
Личную консультацию Заявитель может получить в режиме общей очереди, или по телефону. Время ожидания заинтересованного лица для консультирования не превышает 30 минут. Время консультирования – до 20 минут.
Постановление или отказ в присвоении наименований улицам, площадям и иным территориям проживания граждан, установление нумерации домов должны быть приняты не позднее чем через 30 дней со дня представления заявления и соответствующих документов.
Образец Постановления:

Получив Постановление «Об упорядочивании адресного хозяйства», собственнику земельного участка необходимо подать заявление в ФГБУ «ФКП Росреестра» по Смоленской области о кадастровом учете изменений (изменений в адресе объекта), указав в своем заявлении идентификационный номер, который был получен объектом адресации, при внесении его сотрудником администрации в федеральную информационную адресную систему Федеральной налоговой службы.
После проведения кадастрового учета изменений, новый адрес участка автоматически вносится в базу данных Росреестра. Собственнику выдается новая выписка из ЕГРН, в которой указан новый адрес земельного участка.
По каждому земельному участку поселка «Новые Екимовичи» собран полный пакет документов. Рассмотрим на примере участка № 445:
Земельный участок № 445 относится к категории земель – земли населенных пунктов, разрешенное использование – для индивидуального жилищного строительства, площадь 19,12 соток, правильной трапециевидной формы, ровный.
На земельный участок есть кадастровый паспорт:




Участок находится в собственности Азаренко П.М. на основании Договора купли-продажи от 16.08.2012г, что подтверждается Свидетельством о государственной регистрации права 67-АБ 995895 от 12.09.2013, и Самсонова М.В. на основании Договора купли-продажи №1 от 26.02.2009г, что подтверждается Свидетельством о государственной регистрации права 67-АБ 995894 от 12.09.2013. Свидетельства типовой формы:
В настоящее время такой документ уже не выдается и после приобретения участка новый собственник получит выписку из Единого государственного реестра недвижимости, в которой будут сведения и о правах на участок и об его основных характеристиках и местоположении.
Право собственности на землю является конституционным правом граждан и юридических лиц (ст. 36 Конституции РФ). Оно является первоначальным по отношению к другим видам вещных прав. Все другие права производны от него и представляют собой всего лишь ограниченные вещные права. Право собственности же абсолютно. Абсолютность права собственности заключается в том, что собственник имеет право распоряжаться принадлежащим ему имуществом как пожелает.
Основное содержание права собственности включает в себя три важнейших правомочия собственника:
1) право владеть имуществом, то есть реально им обладать;
2) право пользоваться имуществом, то есть извлекать из него выгоду (получать плоды, продукцию, доходы);
3) право распоряжаться имуществом, то есть продавать, обменивать, дарить, оставлять в наследство по завещанию, сдавать в аренду, отдавать в залог и так далее.
Гражданский кодекс РФ ст. 209, 260, 263
При совершении сделки заключается типовой договор купли-продажи. Пример типового договора купли-продажи земельного участка можно скачать здесь:
Пример договора купли-продажи земельного участка
После регистрации договора купли-продажи земельного участка в Управлении Федеральной службы государственной регистрации, кадастра и картографии по Смоленской области Вы получаете Свидетельство о праве собственности на данный земельный участок.
Земельному участку № 445 присвоен адрес: Смоленская область, Рославльский район, с.Екимовичи, ул.В.Теркина, участок № 28 (в последствии будет дом №28) на основании Постановлений Администрации Екимовичского сельского поселения «Об упорядочивании адресного хозяйства» № 227 от 05.06.2013 и № 228 от 05.06.2013:


На земельный участок № 445 получен Градостроительный план № RU6751500-54, утвержденный Постановлением Администрации муниципального образования «Рославльский район» Смоленской области №382 от 21.02.2014:


До участка идет хорошая, отсыпанная ПГС дорога, подведена линия электропередач 15 кВт.
Участок находится в зоне строительства объекта "Газопровод для газоснабжения жилой зоны села Екимовичи Рославльского района Смоленской области. II-я очередь" .
https://www.youtube.com/watch?v=wu9bA2ZADC4 - Видеоописание поселка
http://www.youtube.com/watch?v=pJ7jgiqn-iE - Газификация поселка начата.
http://www.youtube.com/watch?v=kP5GYkl532w
http://www.youtube.com/watch?v=0bMJQTDPg7o
Предлагаем Вашему вниманию пошаговую схему приобретения земельного участка:
Шаг 1
Ознакомление с информацией, представленной на сайте.
Шаг 2
Связаться с менеджером компании для консультации можно по телефонам: 8 (48134) 6-57-78
8 910 765 51 55
8 910 710 13 08
Шаг 3
При желании по телефону можно забронировать выбранный земельный участок на срок до 7 дней и в это время съездить посмотреть поселок самостоятельно или с помощью сотрудника компании.
Договориться о просмотре земельного участка можно по телефонам 8 910 710 13 08, 8 920 661 98 12
Шаг 4
Договориться о встрече в офисе (г.Рославль, ул.Ленина, д.4, оф.1) с менеджером, который поможет подобрать земельный участок в соответствии с требованиями и пожеланиями.
Приехать в офис, где уточнить необходимую информацию о конкретном выбранном, понравившемся земельном участке, ознакомиться с документами на земельный участок и условиями заключения сделки.
Шаг 5
Заключение предварительного договора купли-продажи земельного участка на срок до 3-х месяцев с внесением задатка.
или
Заключение договора купли-продажи земельного участка, регистрация сделки в Управлении Федеральной службы государственной регистрации, кадастра и картографии по Смоленской области со 100%-й оплатой земельного участка в этот же день.
Шаг 6
Заключение договора купли-продажи земельного участка, регистрация сделки в Управлении Федеральной службы государственной регистрации, кадастра и картографии по Смоленской области со 100%-й оплатой земельного участка.
Шаг 7
Получение Свидетельства о государственной регистрации права собственности на приобретенный земельный участок по истечении 10 рабочих дней государственной регистрации.
Уважаемые покупатели!
Для тех, кто уже приобрел или только собирается приобретать у нас земельный участок, будут полезными следующие памятки:
1. Порядок совершения покупки.
Вы нашли на нашем сайте то, что искали - земельный участок. Что делать дальше? С чего начать? Вам поможет разработанная специально для этого пошаговая Схема приоретения земельного участка. Скачать
2. Порядок действий после приобретения земельного участка.
После приобретения земельного участка необходимо проделать следующие шаги: 1. Получение правоустанавливающих документов на земельный участок после госудасртвенной регистрации... Скачать подробнее
3. Памятка "Строительство жилого дома, пристроек, инженерных коммуникаций, системы водоснабжения".
Где можно заказать готовый дом, или сруб дома, бани, беседки? Или построить дом самому? Из чего? Как? А куда обратиться для подведения воды к дому или обустройства канализации? На все эти вопросы можно найти ответы в нашей памятке. Чтобы сэкономить Ваше время и сориентировать в многообразии предложений, мы составили подборку контактов организаций и частных лиц, выполняющих строительные работы и предоставляющих строительные материалы. Скачать
4. Памятка "Получение леса на строительство жилого дома".
Согласно ст.30 Лесного кодекса Российской Федерации (федеральный закон № 200-ФЗ от 04.12.2006г.) граждане могут осуществлять заготовку древисины для собственных нужд на льготных основаниях... Скачать подробнее
5. Памятка "Подключение электроэнергии к строительной площадке на земельном участке".
Подробная инструкция по исполнению обязательств по Договору об осуществлении технологического присоединения к электрическим сетям, Технических условий. Скачать
6. Преимущества приобретения земельного участка у нас.
Почему лучше купить земельный участок у нас? В этой памятке,где обрисованы все очевидные преимущества и выгоды приобретения земельного участка в нашем поселке "Новые Екимовичи" ????,, Вы получите подробный ответ на этот вопроc. Скачать
14 марта 2015г на собрании собственников земельных участков в поселке "Новые Екимовичи" были избраны старосты по улицам поселка. Теперь для решения текущих организационных вопросов, связанных с жизнедеятельностью поселка, можно обращаться к старостам:
|
Название улицы
|
ФИО старосты |
Телефон |
|
В.Теркина |
Чистяков Павел Борисович |
8 920 665 13 20 |
|
Успешная |
Ольга Николаевна Андрощук |
8 910 725 64 79 |
|
Северная |
Кашкаров Николай Александрович |
8 910 786 75 77 |
|
Депутатская |
Кудрявцев Юрий Владимирович |
8 910 727 98 88 |
|
Лесная |
Кашкаров Алексей Александрович |
8 915 657 11 23 |
|
Долгая |
Кожанов Андрей Александрович |
8 904 368 09 70 |
|
Надежная |
Рысев Александр Викторович |
8 915 646 12 70 |
|
Мирная |
Прудников Александр Викторович |
8 910 789 58 63 |
|
Сельская |
Патракеев Игорь Юрьевич |
8 915 650 20 09 |
|
А.Вавилова |
Романов Виталий Юрьевич |
8 915 657 23 36 |
Таблицу "Контактные данные владельцев участков" можно скачать здесь.
Уважаемые покупатели!
ООО «Агро»- это компания, имеющая многолетний опыт по продаже земли. У нас продажа земли осуществляется с соблюдением всех законодательных требований.
Рады Вам представить коттеджный поселок «Новые Екимовичи»,в котором несколько сотен участков ждут своих хозяев!Земля поселка «Новые Екимовичи» переведена из земель сельхозназначения в категорию земель – земли населенных пунктов с разрешенным использованием для индивидуального жилищного строительства (ИЖС), о чем свидетельствуют правоустанавливающие документы. Решением совета депутатов №21 от 28.09.2012 эта земля включена в генеральный план Екимовичского сельского поселения, который согласован с Администрацией Смоленской области и с Администрацией МО Рославльский район (со всеми документами можно ознакомиться на официальном сайте Екимовичского сельского поселения или непосредственно в Администрации Екимовичского сельского поселения).
Очевидным и неоспоримым преимуществом таких земель является возможность получения прописки, что, в свою очередь, означает полную социальную защищенность, возможность получать качественное медицинское обслуживание, образование и официальное трудоустройство. Кроме того, покупка земли сегодня – это отличное вложение средств, инвестиция в будущее благополучие вашей семьи. Даже в условиях кризиса, земля и построенная на ней недвижимость постепенно будут дорожать.
Сейчас у Вас есть возможность приобрести земельный участок под строительство в собственность по приемлемой цене (спрос растет, что в свою очередь увеличивает стоимость предложения).
С нами вы сможете легко выбрать себе подходящий именно Вам участок, а наши специалисты с радостью Вам в этом помогут.
Почему лучше купить земельный участок у нас?
Огромный выбор:
Возможность постоянной регистрации:
Развитая инфраструктура:
Сочетание естественной природы с благами цивилизации:
Коммуникации:
Транспортная доступность:
Преимущества рельефа и почв:
Юридическое сопровождение:
Индивидуальный подход к каждому клиенту:
Неприкосновенность частной собственности:
Преимущества приобретения участка у нас в отличие от других предложений:
Специалисты ООО «Агро» готовы оказать Вам и Вашим близким помощь в подборе земельного участка Вашей мечты. Просто позвоните по телефону 8 (48134) 6-57-78– мы бесплатно проконсультируем Вас и проведем показ понравившихся Вам участков!
